Quick Search:
Property ID:
Sale
Features
Description
RAY COOKE AUCTIONEERS are delighted to present this charming 2-bedroom end-of-terrace duplex to the market, ideally located within the highly sought-after Hunters Wood development in Ballycullen, Dublin 24.
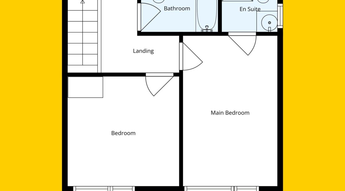
No. 21 Hunters Green offers a beautifully presented interior extending to approx. 72 sq.m of well-designed living space across two levels. On entering, you are welcomed by a bright hallway which leads into a spacious dual-aspect lounge/kitchen/dining area, complete with access to a ground-floor patio. A generous utility room provides additional practicality and storage. Upstairs, there are two large double bedrooms, including a master bedroom with ensuite, along with a well-appointed main family bathroom.
Positioned at the foothills of the Dublin Mountains, Hunters Wood enjoys an enviable setting with a wide range of amenities nearby. A Tesco Superstore, Lidl, and crèche are all within a short drive, while schools, sports clubs, shops, restaurants, and green spaces are easily accessible.
The area is well served by regular public transport links providing direct access to Dublin City Centre, while the nearby M50 motorway offers excellent connectivity to the wider Dublin area.
With its superb location and well-proportioned accommodation, No. 21 is sure to appeal to a wide range of buyers. Early viewing is highly recommended.
Contact Ray Cooke Auctioneers today for further information or to arrange a viewing.
Features
– c. 72 sq m
– 2 bed, 2 bath
– End of Terrace duplex
– C2 energy rating
– Built c.2004
– Electric heating
– Double glazed windows
– Designated car port
– Well presented throughout
– Two generous double bedrooms
– Highly sought after development
– Early viewing highly advised!
BER Details
BER: C2
Directions
Eircode: D24 K07N
Location

Phone:
Connect with us:
Phone:
Connect with us:
Rathcoole Office
Phone:
Connect with us:
Similar Properties
For Sale
- 2 Rooms
- 2 Baths
- 72 sq m
- 2 Rooms
- 2 Baths
For Sale
- 4 Rooms
- 4 Baths
- 151 sq m
For Sale
- 4 Rooms
- 3 Baths
- 134 sq m
- 3 Rooms
- 1 Baths
- 4 Rooms
- 2 Baths
- 3 Rooms
- 2 Baths
















































