Quick Search:
Property ID:
Description
RAY COOKE AUCTIONEERS proudly present this three bedroom mid terrace property overlooking a large green area to the market with in the quaint location of St Ronan’s Park, Dublin 22. St Ronan’s Park finds itself within walking distance of a wide array of local amenities including schools, shops and recreational facilities, not to mention having Liffey Valley Shopping Centre within arm’s reach. The M50 motorway is very easily accessible and there are a host of bus routes to the front of the development.
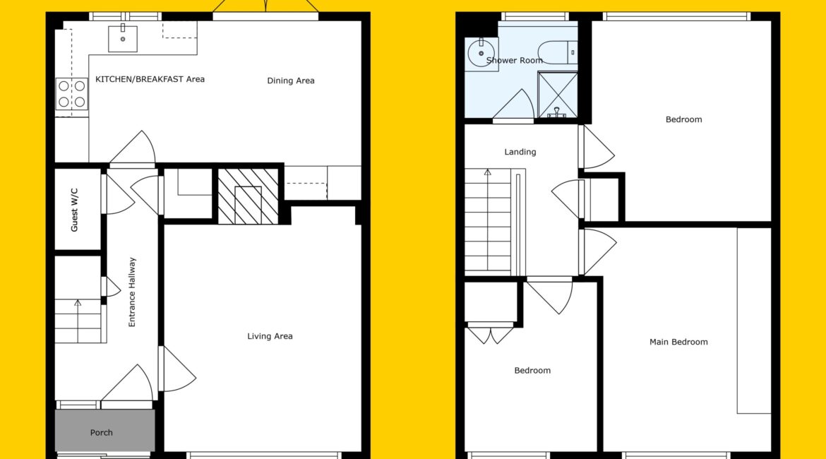
Interior living accommodation of c.80 sq m comprises of entrance hallway, guest wc, lounge, fully fitted kitchen/dining room, two double bedrooms, one single bedroom and main family bathroom. Externally to the rear of the property you will find a fully enclosed, SOUTH facing garden with storage sheds whilst the front offers a driveway for off road parking. No. 21 comes to the market in good condition throughout having been well maintained and upgraded by its current owners, further benefits here include gas central heating with new boiler, double glazed windows and is offered to the market with no onward chain. Early viewing is highly advised. Call RAY COOKE AUCTIONEERS today for further information.
Features
BER C3
c.80 sqm
3 Bed/2 bath
Gas fired central heating with upgraded boiler
Double glazed windows
South facing rear garden
Well-presented throughout
No onward chain
Light filled interior
Overlooking large green area
Mature and settled area
A host of bus routes within walking distance.
Directions
If travelling out of Clondalkin Village passing The Mill Shopping Centre proceed straight through the traffic light junction at The Waterside Inn and again through the traffic light junction at The On The Run Service Station. Turn right onto Neilstown Road and proceed through the roundabout at Neilstown Shopping Centre. Turn left onto St. Ronans Avenue and then take a right turn onto St Ronans Park.
Location

Phone:
Connect with us:
Phone:
Connect with us:
Similar Properties
For Rent
- 2 Rooms
- 2 Baths
For Sale
- 3 Rooms
- 1 Baths
- 90 sq m
For Sale
- 2 Rooms
- 1 Baths
For Sale
- 3 Rooms
- 1 Baths
- 83 sq m
For Sale
- 2 Rooms
- 2 Baths
- 66 sq m
For Sale
- 4 Rooms
- 4 Baths
- 165 sq m
For Sale
- 3 Rooms
- 2 Baths
- 87 sq m
For Sale
- 2 Rooms
- 2 Baths
- 66 sq m
For Rent
- 4 Rooms
- 2 Baths
For Rent
- 5 Rooms
- 2 Baths



























































