Quick Search:
Property ID:
Features
Description
RAY COOKE AUCTIONEERS are pleased to present this gorgeous first floor, two bedroom, one bathroom apartment to the market ideally situated in the highly sought after development of Melville Drive, Finglas, Dublin 11. This mature development is within close proximity Charlestown shopping centre with the renowned Odeon Cinema and a mere stroll from Finglas Village which hosts a range of shops, amenities, bars, restaurants, and prestigious schools, both primary and secondary. There are excellent road networks and transport routes including the M50, M1, Port Tunnel and a host of bus routes. The Botanic Gardens, Ikea, DCU and Dublin airport are also within easy reach.
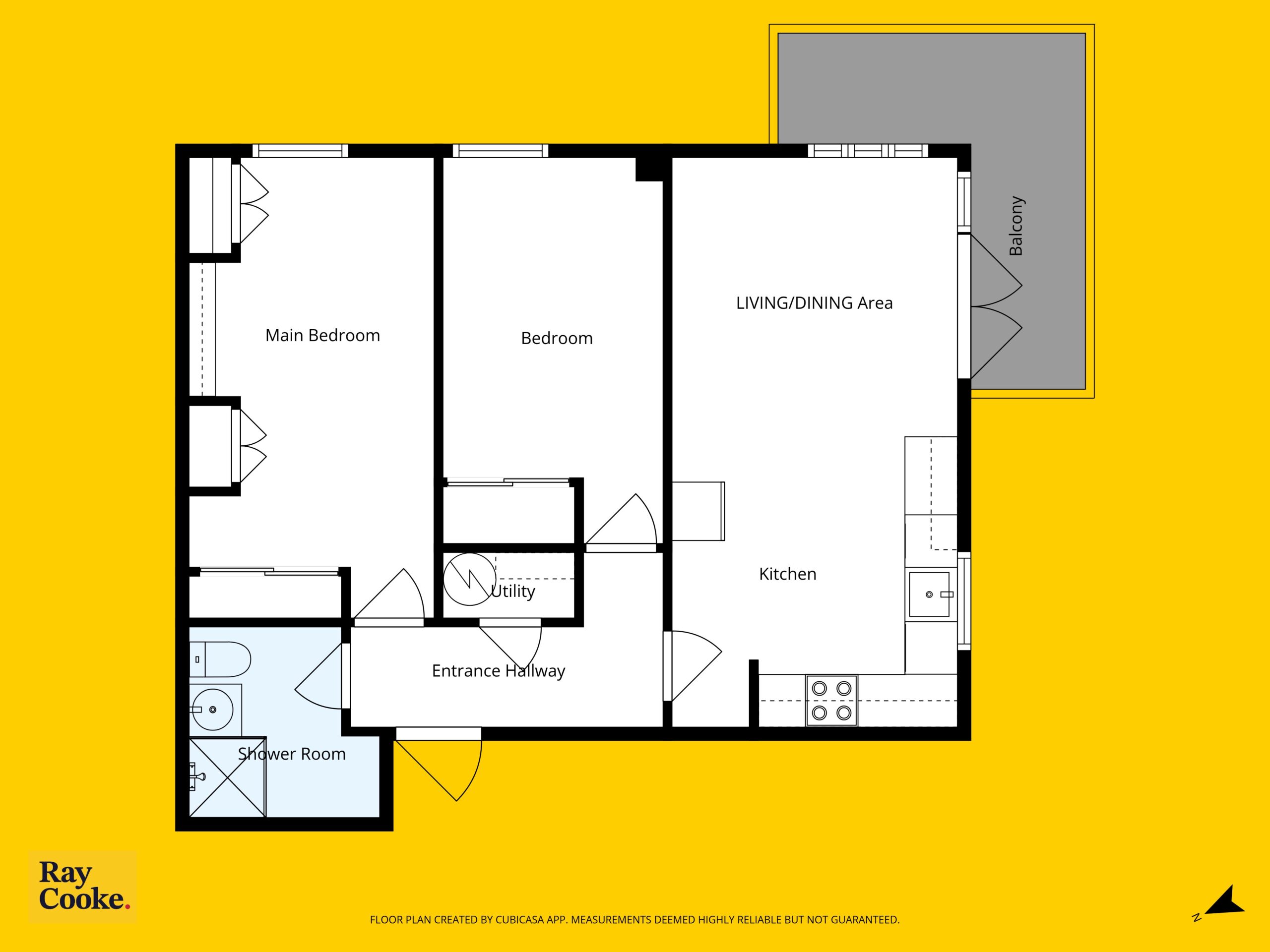
Living accommodation of c. 59 Sqm comprises of entrance hallway, open plan living/dining area, leading into the kitchen, down the hall you will find the main family bathroom, followed by two double bedrooms.
No. 23 boasts massive potential for first time buyers, downsizers and anyone looking to live in a mature and well established development. The apartment is presented in great condition throughout and boasts the benefit of coming to market vacant and with no onward chain. No. 23 will be popular among a variety of buyers, early viewing is highly advised. Contact RAY COOKE AUCTIONEERS on 0860754597 or 015411455 to arrange a viewing today.
Additional Features;
– 2 bed/ 1 bath apt
– BER C1
– Two spacious double bedroom
– Management fees c. €1465 per annum
– Parking included
– Spacious Balcony
– Amazing location
– Excellent primary and secondary schools in the area
– Easy access to M50 motorway
– Wide range of bus routes at your doorstep
– Mature and highly sought after development
– Ideal for first time buyers and downsizers
– Viewing is highly advised
Location

Phone:
Connect with us:
Phone:
Connect with us:
Similar Properties
For Sale
- 5 Rooms
- 3 Baths
- 146 sq m
For Rent
- 4 Rooms
- 1 Baths
For Sale
- 3 Rooms
- 2 Baths
- 109 sq m
For Sale
- 4 Rooms
- 2 Baths
- 138 sq m
For Sale
- 1 Rooms
- 1 Baths
- 44 sq m
For Rent
- 2 Rooms
- 1 Baths
For Sale
- 4 Rooms
- 2 Baths
- 130 sq m
For Sale
- 3 Rooms
- 2 Baths
- 110 sq m
For Sale
- 3 Rooms
- 1 Baths
- 90 sq m
For Sale
- 3 Rooms
- 1 Baths
- 94 sq m










































