Quick Search:
Property ID:
Features
Description
RAY COOKE AUCTIONEERS are delighted to introduce this fantastic three-bedroom semi-detached family home, ideally positioned within the mature residential area of Cedarwood Green in Glasnevin. Nestled in a well-established residential area adjacent to Poppintree Park, properties here are rarely available, making this a prime opportunity for prospective buyers. No. 25 boasts a prime location close to Glasnevin and Finglas Villages and within walking distance of numerous amenities, including the Botanic Gardens, Na Fianna GAA Club, Tolka Rovers Football Club, Hampstead Park, and Griffith Park. It is also conveniently located near The Bons Secours Hospital, Glasnevin Cemetery, and Dublin City University. A selection of excellent primary and secondary schools is just a short walk away, including St. Brigid’s, Scoil Mobhí, Glasnevin National School, Glasnevin Educate Together, Corpus Christi, Scoil Chaitriona, and Holy Faith. Additionally, the area is well-served by direct bus routes to the city centre, along with the 19-bus route providing a direct link to Dublin Airport.
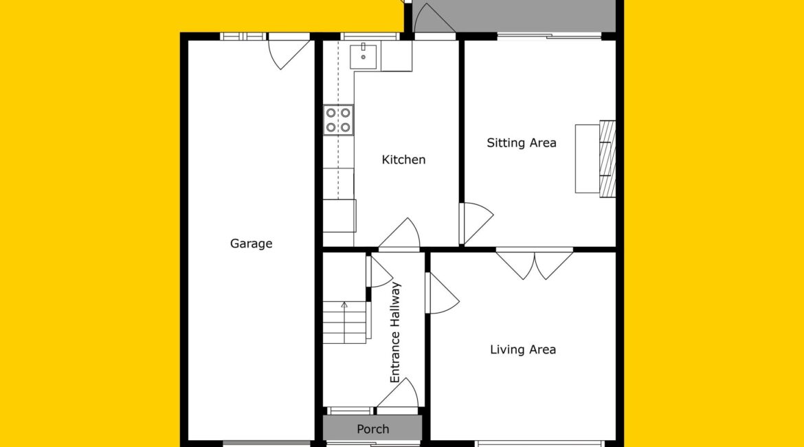
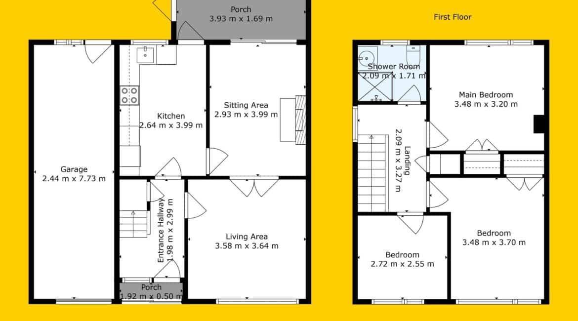
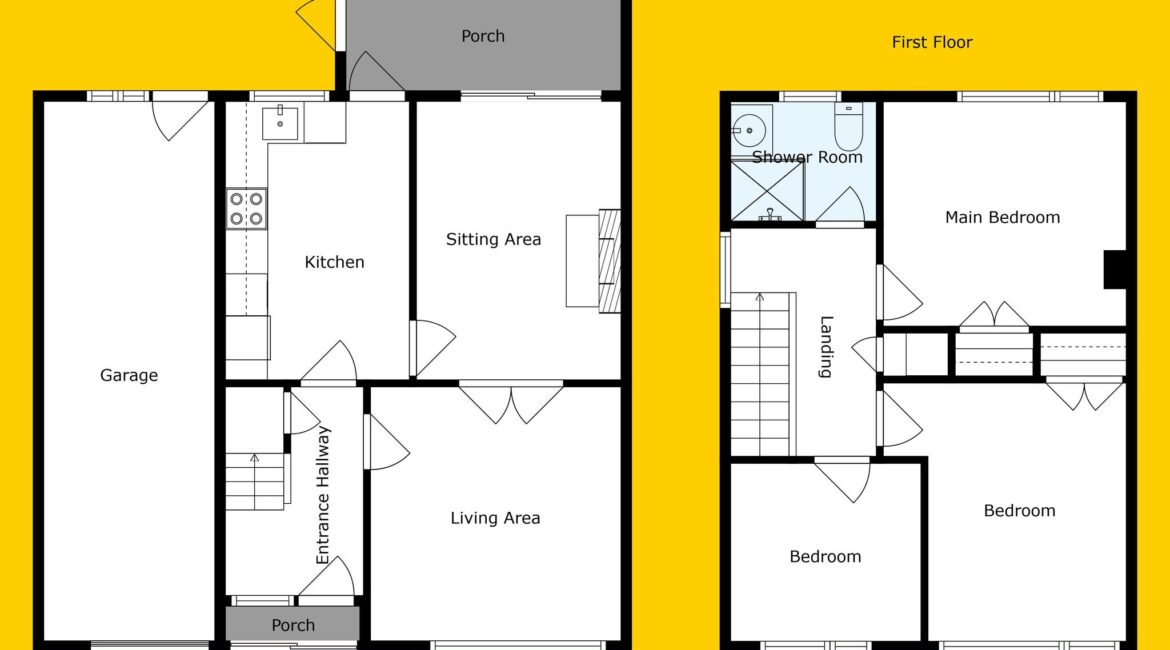
Bright and spacious internal accommodation of c. 90 sq.m. comprises a welcoming entrance hallway leading to a spacious living area to the front. A well-proportioned sitting room connects seamlessly to the rear, with an adjacent kitchen offering practicality and direct access to the rear porch, providing further versatility and storage with a convenient link from front to back of the house. Upstairs hosts three bedrooms, two generously sized doubles and a well-proportioned single and a fully tiled family bathroom all arranged around a bright landing. The property further benefits from a garage to the side, providing additional storage or scope to convert. (subject to p.p) To the rear there is a sunny southwest facing garden. This property is perfect for first-time buyers, families, or those looking to upsize. An opportunity not to be missed; Contact the agent at our Northside office on 01-6995050 or 086-0469458 for further information or to arrange viewing!!
Additional Features;
– 90 sq.m
– BER D2
– 3 bed 1 bath
– Semi Detached
– Front driveway
– Garage to side
– Gas fired central heating
– Feature fireplace
– South Westerly facing rear garden
– Generous sized bedrooms
– Double glazed windows
– Mature and sought-after location
– Excellent primary & secondary schools in the area
– Easy access to M50 motorway
– Bus routes to City Centre close by
– Walking distance of Glasnevin and Finglas Villages
– Within 20 minutes’ drive to Dublin Airport
– Ideal for first time buyers and those thinking of trading up
– Early viewing highly advised!!
Directions:
Travelling on Glasnevin Avenue, turn right onto Grove Park Road, turn right onto Sycamore Road, continue on to Willow park crescent and turn left onto Willow Park Road, continue on to Cedarwood Green and No. 25 is located on the left hand side.
Location

Phone:
Connect with us:
Phone:
Connect with us:
Similar Properties
For Sale
- 3 Rooms
- 2 Baths
- 86 sq m
For Sale
- 2 Rooms
- 2 Baths
- 86 sq m
For Sale
- 3 Rooms
- 2 Baths
- 104 sq m
For Rent
- 4 Rooms
- 1 Baths
For Rent
- 5 Rooms
- 2 Baths
For Sale
- 2 Rooms
- 1 Baths
- 75 sq m
For Sale
- 3 Rooms
- 1 Baths
- 72 sq m
For Sale
- 2 Rooms
- 2 Baths
- 56 sq m
For Rent
- 3 Rooms
- 3 Baths



































































