Quick Search:
Property ID:
Sale
Features
Description
RAY COOKE AUCTIONEERS are delighted to present this own door ‘Garden apartment’ to the Dublin 15 market to the rear of the illustrious Linnetfields Park development, Clonee. This development is perfectly located just a stones’ throw away from Ongar Village with plenty of shops, cafes, bars and restaurants. The development itself offers a green space, communal gardens and communal parking. On the outskirts of the development you will find many schools and parks and great transport links including the M50 & N3.
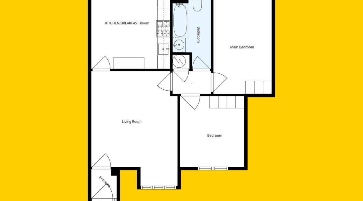
Bright and spacious internal living accommodation of c. 71 sq m comprises of entrance hallway, spacious living room to the front, fully fitted kitchen/ dining room to the rear, two double bedrooms and a main family bathroom. The apartment also benefits from double doors from the kitchen out towards the rear communal gardens.
No. 26 is presented in immaculate condition throughout and has been meticulously maintained and upgraded in recent years. The long list of additional features includes a recently upgraded heating system, B3 energy rating, stunning flooring and a spacious south facing communal garden area with mature planting and lawn area. Early viewing is highly advised, call Ray Cooke Auctioneers for further information or to arrange viewing!!
Features;
– c. 71 sq m
– 2 BED / 1 BATH
– In complete turn-key condition throughout
– Meticulously maintained and upgraded over the years by its current owners
– No onward chain
– B3 BER rating
– Eligible for green saver mortgage
– Own door garden apartment
– Upgraded flooring
– Communal parking
– Secure & gated development
– Built in storage throughout
– Rear communal gardens – Management fees c. €1,158 per annum
– 5 min walk Ongar village (with Dunnes supermarket),
– 5 min drive to Clonee.
– SuperValu, Aldi, Lidl all within 5 min drive
– Within easy reach M50 Motorway & N3
– Primary and secondary schools in close proximity
– Ideal for first time buyers and investors
– Viewing highly advised!
Location

Phone:
Connect with us:
Phone:
Connect with us:
Rathcoole Office
Phone:
Connect with us:
Similar Properties
For Sale
- 4 Rooms
- 3 Baths
- 125 sq m
For Sale
- 3 Rooms
- 3 Baths
- 115 sq m
For Sale
- 2 Rooms
- 1 Baths
- 71 sq m
For Sale
- 2 Rooms
- 2 Baths
- 75 sq m
For Sale
- 2 Rooms
- 1 Baths
- 67 sq m
For Sale
- 2 Rooms
- 2 Baths
- 84 sq m
For Rent
- 3 Rooms
- 1 Baths
- 2 Rooms
- 1 Baths
For Sale
- 3 Rooms
- 3 Baths
- 96 sq m
- 4 Rooms
- 3 Baths










































