Quick Search:
Property ID:
Sale
Features
Description
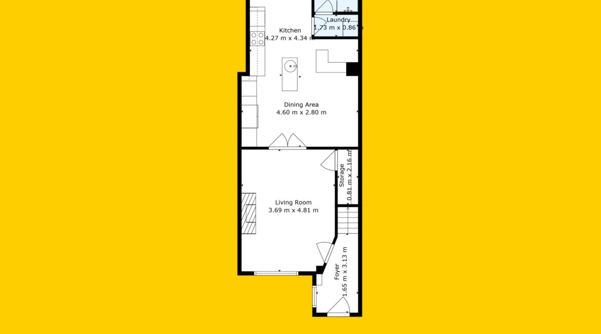
RAY COOKE AUCTIONEERS proudly present to the market this immaculately presented, extended and perfectly located mid-terrace property with the additional benefit of a converted attic. Situated in a quiet cul de sac of Glenaulin, Chapelizod, Located just minutes from the heart of the ever sought after Chapelizod Village in Dublin 20, this is arguably one of Dublin 20’s most sought-after locations. A host of local amenities can be found on your doorstep including transport links, shopping facilities, parks and recreational facilities to name a few. From a transport point of view, Chapelizod is located less than 6km from the city centre, a short distance to the N4/M4/M50 road networks and has access to public transport routes at the front of the development. Bright, open and spacious internal living accommodation of c. 130 sqm can be found here and in brief consists of; Entrance hall, lounge, open plan kitchen/family/diner and also a utility and downstairs shower room to the ground floor. upstairs you will find two double bedrooms, a refitted family bathroom and a study, formerly the 3rd bedroom which now has stair case access to the converted attic. Externally to the rear you will find a split level, well presented court yard style garden with a high degree of privacy and covered seating area whilst the front offers a driveway for off road parking. No. 33 is presented in turn-key condition throughout having been lovingly maintained by its current owners and is prime for any first-time buyer looking to get on the property ladder or any family looking to move into this highly sought-after estate. Further benefits here include gas fired central heating, double glazed windows and it tucked away in a secluded spot in this highly desirable development. Early viewing is highly advised, you can contact RAY COOKE AUCTIONEERS to schedule a viewing today.
Features
Ber C1
c.130 Sqm
3 bed, 2 bath
Extended to rear
Converted attic
Well-presented throughout
Driveway to front
Quiet Cul-de-sac
Private sunny rear garden
Double glazed windows
Highly sought after development
Close to all local amenities
Call today to arrange a viewing!
Direction
Take the exit from the Chapelizod Bypass into Chapelizod village. Once you reach the West Country Hotel, take the left turn into the Glenaulin Development.
Location

Phone:
Connect with us:
Phone:
Connect with us:
Similar Properties
For Sale
- 2 Rooms
- 1 Baths
For Sale
- 1 Rooms
- 1 Baths
- 59 sq m
For Sale
- 2 Rooms
- 1 Baths
- 59 sq m
- 2 Rooms
- 1 Baths
For Sale
- 3 Rooms
- 3 Baths
- 130 sq m
For Sale
- 3 Rooms
- 2 Baths
- 130 sq m









































































