Quick Search:
Property ID:
Sale
Features
Description
RAY COOKE AUCTIONEERS are delighted to present this superb three bedroom mid-terrace family home with converted attic to the market ideally located in the ever popular and highly sought-after development of Lanesborough Grove, Finglas, Dublin 11.
No. 35 is perfectly positioned adjacent to Charlestown Shopping Centre and is within walking distance of Finglas Village, which offers a wide variety of shops, cafés, bars and restaurants. Other nearby amenities include IKEA Dublin and Dublin City University. The location also benefits from excellent transport links with easy access to the M50 Motorway, M1 Motorway, Dublin Airport, and the Dublin Port Tunnel, making it an ideal setting for commuters.
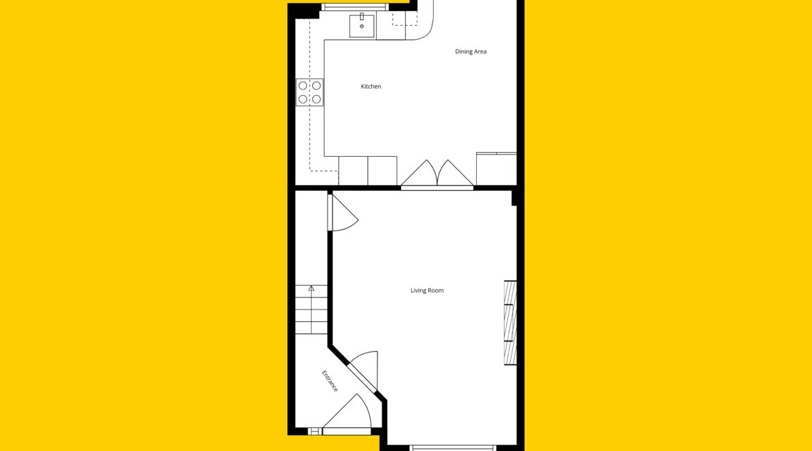
No. 35 boasts bright, spacious and well-proportioned internal living accommodation extending to approximately c. 96 sq.m. The ground floor comprises an inviting entrance hallway leading into a spacious living room, which in turn opens into a recently refurbished open plan kitchen/dining area. The kitchen area provides direct access to a large south-west facing rear garden, ideal for outdoor entertaining and enjoying evening sunshine.
Upstairs hosts three well-proportioned bedrooms, including a generous double bedroom with built-in wardrobes and ensuite bathroom with electric shower, a second double bedroom with built-in wardrobes, and a single bedroom. A fully tiled family bathroom with electric shower completes the first floor accommodation. The property also benefits from a fully converted attic with two Velux windows, offering excellent additional space suitable for a home office, storage or guest accommodation.
No. 35 comes to the market in great condition throughout and further benefits from gas fired central heating, triple glazed windows to the front, double glazed windows to the rear, and a large front driveway providing ample off-street parking.
This property is sure to appeal to first-time buyers, investors and families looking to trade up in one of Dublin 11’s most family-oriented and well-established locations.
Contact Ray Cooke Auctioneers today on 0861985247 or 015411455 to arrange a viewing or register your interest.
Additional Features
– C. 96 sqm
– BER B3
– 3 Bed / 2 Bath mid-terrace home
– Fully converted attic with two Velux windows
– Recently refurbished open plan kitchen/dining area
– Spacious living room
– Large south-west facing rear garden
– Triple glazed windows to the front
– Double glazed windows to the rear
– Gas fired central heating
– Built in wardrobes
– Master bedroom with ensuite and electric shower
– Family bathroom with electric shower
– Large front driveway with off-street parking
– Bright and spacious interior
– Excellent family home
– Within easy reach of the M50 Motorway
– Adjacent to Charlestown Shopping Centre
– Walking distance to Finglas Village
– Ideal for first time buyers, investors and families upsizing
Location

Phone:
Connect with us:
Phone:
Connect with us:
Similar Properties
For Sale
- 5 Rooms
- 3 Baths
- 146 sq m
For Rent
- 4 Rooms
- 1 Baths
For Sale
- 3 Rooms
- 2 Baths
- 109 sq m
For Sale
- 4 Rooms
- 2 Baths
- 138 sq m
For Sale
- 1 Rooms
- 1 Baths
- 44 sq m
For Rent
- 2 Rooms
- 1 Baths
For Sale
- 4 Rooms
- 2 Baths
- 130 sq m
For Sale
- 3 Rooms
- 2 Baths
- 110 sq m
For Sale
- 3 Rooms
- 1 Baths
- 90 sq m
For Sale
- 3 Rooms
- 1 Baths
- 94 sq m


























































