Quick Search:
Property ID:
Sale
Features
Description
RAY COOKE AUCTIONEERS are delighted to present No. 395 Ballyfermot Road, Ballyfermot, Dublin 10—a superb four-bedroom, two-bathroom extended family home presented in good condition throughout. This impressive property offers spacious and well-proportioned living accommodation and, while it would benefit from some minor cosmetic upgrades, it provides an excellent canvas for its new owners to create a truly stunning family home tailored to their own taste and style.
The location of Ballyfermot Road is truly second to none. Situated in the heart of Ballyfermot, this well-established and vibrant community is highly sought after for its convenience and excellent local amenities. Residents benefit from a wide selection of primary and secondary schools, shops, supermarkets, cafés and leisure facilities all within walking distance. The area is also home to a number of parks and green spaces, ideal for outdoor activities. Dublin City Centre is easily accessible via a reliable public transport network, while the nearby road infrastructure provides quick links to the M50 and beyond, making commuting across the capital seamless.
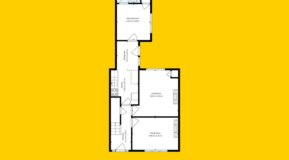
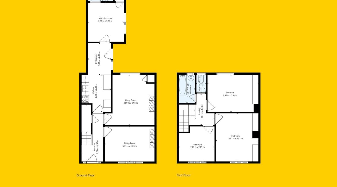
Internally, the accommodation is bright, spacious and thoughtfully laid out, extending to approximately 101 sqm of internal floor space. The ground floor comprises a welcoming entrance hall leading into generous living rooms and dining area, complemented by an extended kitchen space designed with modern family living in mind, the rear of the home features a convenient double bedroom with en-suite. Upstairs hosts four well-proportioned double bedrooms along with the main family bathroom.
To the rear, the property boasts a large south-facing garden, offering an ideal setting for outdoor dining, entertaining or simply relaxing in the sun. The generous outdoor space further enhances the appeal of this wonderful home, providing endless potential for future use.
No. 395 Ballyfermot Road represents an outstanding opportunity to acquire a spacious, extended family home in a mature and well-connected Dublin location, with the added benefit of scope to personalise and upgrade. Early viewing is highly advised.
- Impressive 4 bed/2 bath extended family home
- C. 101sqm of internal floorspace
- BER E1
- Large south-facing rear garden
- Bright and well-proportioned interior throughout
- Extended to enhance living space
- 4 generous double bedrooms
- Gas fired central heating
- Mature and well-established residential area
- Excellent transport links to Dublin City Centre and beyond
- Wide range of local amenities within walking distance
- Early viewing highly advised!
Directions
Eircode – D10 RW01
Location

Phone:
Connect with us:
Similar Properties
For Sale
- 2 Rooms
- 1 Baths
- 71 sq m
For Sale
- 3 Rooms
- 1 Baths
- 81 sq m
For Rent
- 1 Rooms
- 1 Baths
For Sale
- 4 Rooms
- 1 Baths
- 113 sq m
For Sale
- 4 Rooms
- 2 Baths
- 101 sq m
For Rent
- 2 Rooms
- 1 Baths
For Sale
For Sale
- 2 Rooms
- 2 Baths
- 84 sq m
For Sale
- 2 Rooms
- 1 Baths
- 75 sq m
- 3 Rooms
- 3 Baths






























































