Quick Search:
Property ID:
Sale
Features
Description
RAY COOKE AUCTIONEERS are delighted to introduce this fantastic three-bedroom mid terrace family home in the ever popular and sought-after location of Berryfield Road in Finglas, Dublin 11.
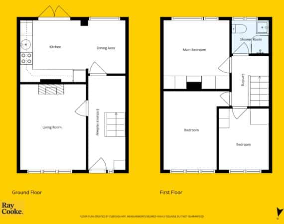
The property enjoys an exceptional location, with local amenities nearby. These include Finglas Village, excellent primary and secondary schools, parks, Erin’s Isle GAA, pubs, restaurants and churches. Additionally, the Charlestown Shopping Centre and IKEA are situated nearby. DCU and Dublin Airport are also conveniently close. The property benefits from easy access to major transport routes, including the M50, M1, and the Port Tunnel. Furthermore, an excellent bus service is readily available. Bright and spacious internal living accommodation of c. 72 sq.m comprises an entrance hallway, living room to front with feature fireplace, kitchen and dining area to rear with access to a low maintenance south facing rear garden. Upstairs hosts 3 generous bedrooms with built in wardrobes and a fully tiled bathroom. This superb family home comes to the market in great condition throughout and benefits gas fired central heating, quality flooring, feature fireplace, front driveway, South facing orientation and a low maintenance rear garden. An opportunity not to be missed; Contact the agent at our Northside office on 01-6995050 or 086-0469458 for further information or to arrange viewing!!
Additional Features;
– 72 sq.m
– BER D2
– 3 bed 1 bath
– Mid Terrace
– South Facing Orientation
– Low maintenance rear garden
– Gas fired central heating
– Feature fireplace
– Generous sized bedrooms
– Double glazed windows
– Mature and sought-after location
– Excellent primary and secondary schools in the area
– Easy access to M50 motorway
– Bus routes to City Centre close by
– Within 15 minutes’ drive to Dublin airport
– Walking distance of Finglas village
– Ideal for first time buyers & those thinking of upsizing
– Early viewing highly advised!!
Location

Phone:
Connect with us:
Phone:
Connect with us:
Mobhi Road Office
Phone:
Connect with us:
Similar Properties
For Sale
- 3 Rooms
- 2 Baths
- 104 sq m
For Rent
- 4 Rooms
- 1 Baths
For Rent
- 5 Rooms
- 2 Baths
For Sale
- 2 Rooms
- 1 Baths
- 75 sq m
For Sale
- 3 Rooms
- 1 Baths
- 72 sq m
For Sale
- 2 Rooms
- 2 Baths
- 56 sq m
For Rent
- 3 Rooms
- 3 Baths
For Sale
- 3 Rooms
- 1 Baths
- 81 sq m
For Sale
- 3 Rooms
- 2 Baths
- 78 sq m














































