Quick Search:
Property ID:
Sale
Features
Description
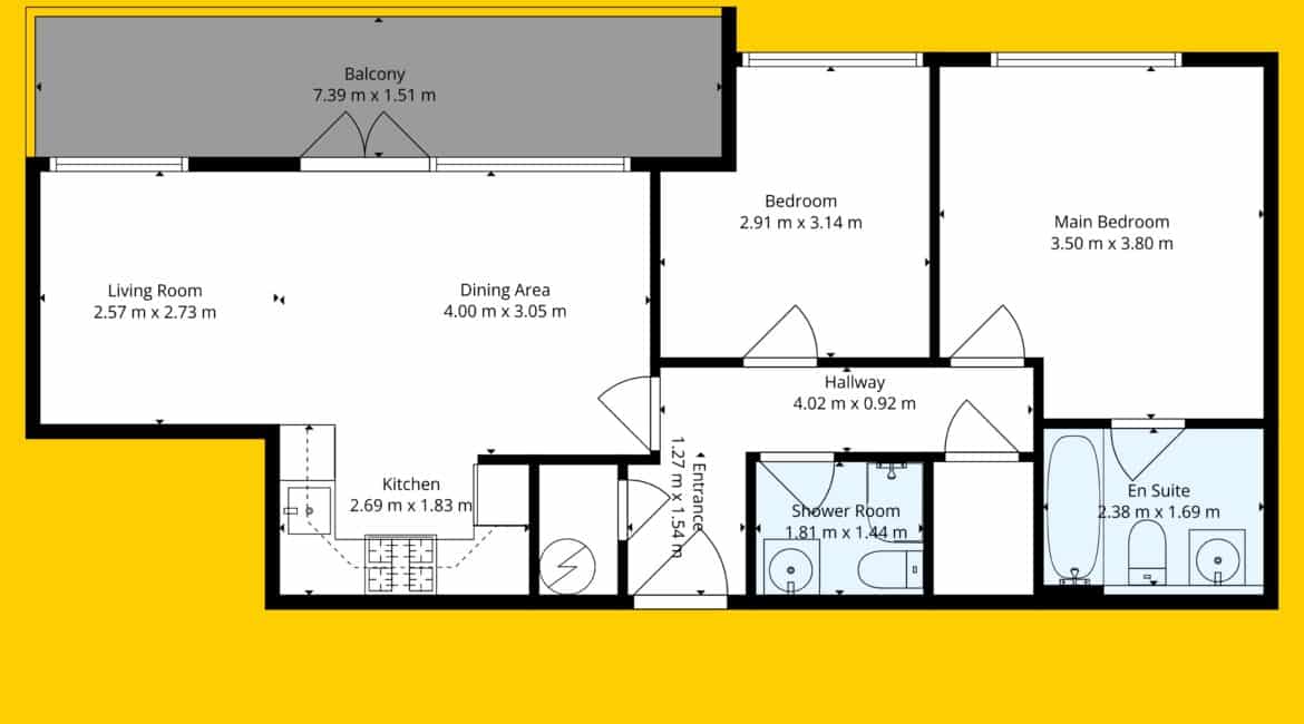
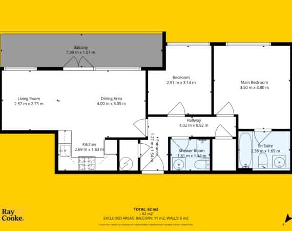
RAY COOKE AUCTIONEERS are delighted to present No. 42 McGovern’s Corner, Cork Street, Dublin 8 to the market — a superb two-bedroom, two-bathroom first-floor apartment ideally positioned in this well-established and highly convenient development in the heart of Dublin 8.
McGovern’s Corner enjoys a prime city location on Cork Street, offering residents immediate access to a wealth of amenities. Dublin City Centre is within comfortable walking distance, while the area is exceptionally well serviced by public transport. A host of shops, cafés, restaurants, schools, and leisure facilities are all close by, along with some of Dublin’s most notable landmarks including the Guinness Storehouse and St. Patrick’s Cathedral. The nearby Phoenix Park provides one of Europe’s largest enclosed city parks, offering excellent outdoor and recreational opportunities.
Built in 2004 and extending to approximately 63 sq.m., this bright and well-proportioned apartment is presented in good condition throughout. The accommodation briefly comprises a welcoming entrance hallway, two generous double bedrooms (including a master with ensuite), a main family bathroom, and a spacious open-plan living/dining area with adjoining kitchen, designed to maximise both comfort and natural light. The front hosts an extra large balcony, overlooking Cork Street with a southern orientation, flooding the home with natural light.
No. 42 further benefits from a designated car parking space, secure communal areas, and a well-maintained development. The property is offered to the market vacant with no onward chain, ensuring a smooth and straightforward transaction for prospective purchasers.
This fantastic apartment will appeal to first-time buyers, downsizers, and investors alike seeking a quality home in a mature and central location. Early viewing is highly recommended.
Features
- 2 bed/2 bath apartment
- C. 63 Sqm
- BER D2
- Constructed in 2004
- First floor apartment
- Presented in good condition
- Vacant with no onward chain
- Lift and stair access
- Designated parking
- Superb central location
- An abundance of transport links within easy reach
- Exclusive development
- Prime for first time buyers, downsizers and investors
Directions:
Eircode D08 TW32
Location

Phone:
Connect with us:
Similar Properties
For Sale
- 2 Rooms
- 2 Baths
- 63 sq m
- 1 Rooms
- 1 Baths














































