Quick Search:
Property ID:
Sale
Features
Description
RAY COOKE AUCTIONEERS are proud to present this exceptionally bright 2-bedroom, 2-bathroom apartment to the Dublin 8 market. Superbly positioned on the top floor of the sought-after Chancery Court development, No. 43 offers a rare combination of city-centre convenience and high-end living. Located just minutes from Trinity College, Grand Canal Dock, Heuston Station and the Luas lines every amenity from shopping to transport is right on your doorstep.
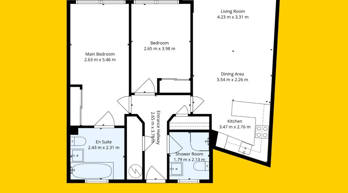
Completely renovated bright and spacious living accommodation of c. 81 sq m comprises a welcoming entrance hallway with storage, leading into an expansive open-plan living and dining area. This space is defined by floor-to-ceiling corner windows and provides direct access to a fully private, south-facing balcony—an ideal sun-trap for morning coffee or evening relaxation.
In addition to your own private balcony, residents enjoy access to a sun-drenched, semi-private south-facing roof garden. This shared oasis offers a peaceful retreat from the city buzz with panoramic views across the Dublin skyline. The kitchen has been fully modernised and is fitted with a range of premium integrated appliances. Both bedrooms are generous doubles with excellent natural light, including a master with a private ensuite. The bathrooms have been finished with contemporary tiling and feature new LED back-lit mirrors.
The list of additional features is endless – This is a unique opportunity for anyone seeking a turnkey home in the heart of the city. Early viewing is highly advised. Call RAY COOKE AUCTIONEERS today!
Key Features:
Fully renovated apartment
BER B3
c. 81 Sq m
Floor-to-Ceiling Windows
Flooded with natural Light
Roof terrace
Panoramic views of Dublin City skyline
Double glazed windows
One secure underground car parking space with the apartment
Very well managed development and management company. Service charge fee c. 3,900
Viewing highly advised
Location

Phone:
Connect with us:
Phone:
Connect with us:
Similar Properties
For Sale
- 2 Rooms
- 1 Baths
- 65 sq m
- 2 Rooms
- 1 Baths
For Sale
- 2 Rooms
- 1 Baths
For Sale
- 2 Rooms
- 2 Baths
- 81 sq m
For Rent
- 2 Rooms
- 2 Baths
- 1 Rooms
- 1 Baths











































































