Quick Search:
Property ID:
Sale
Features
Description
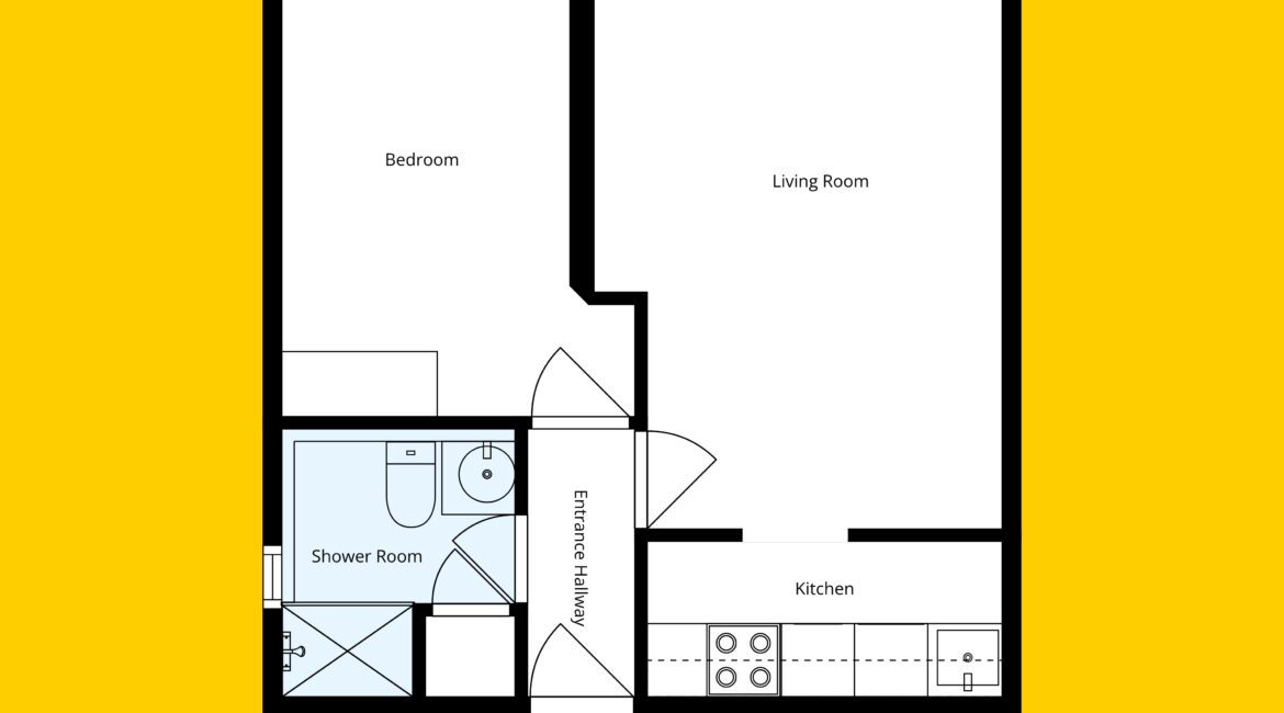
RAY COOKE AUCTIONEERS proudly present this superb one-bedroom apartment to the market at No. 50 Stapleton House, Mountjoy Square, Dublin 1.
Ideally located in the heart of Dublin City Centre, this bright and spacious apartment offers well-proportioned accommodation within the ever-popular Mountjoy Square development.
The internal accommodation comprises of an entrance hallway, a generous living/dining room with wood-effect laminate flooring and feature fireplace, a separate fully fitted kitchen with a range of wall and base units, a spacious double bedroom with fitted storage, and a fully tiled main bathroom complete with shower enclosure.
No. 50 is presented in good condition throughout and benefits from excellent natural light. The location is second to none within walking distance of O’Connell Street, the IFSC, Mater Hospital, Croke Park and a wealth of local amenities. Excellent public transport links are on your doorstep including Dublin Bus routes and the LUAS.
This property is sure to appeal to first-time buyers, investors and those seeking a prime city-centre residence. Early viewing is highly advised, Contact Ray Cooke Auctioneers today on 0868323302 or 015411455 for further information or to arrange a viewing.
Key Features
• c.40 sq.m.
• C2 BER Rating
• Bright and well-proportioned 1 bedroom / 1 bathroom apartment
• Spacious living / dining area with feature fireplace
• Wood-effect laminate flooring throughout living areas
• Separate fully fitted kitchen with ample storage
• Generous double bedroom with fitted wardrobes
• Fully tiled main bathroom with shower enclosure
• Electric heating
• Prime city centre location
• Walking distance to O’Connell Street, IFSC and Mater Hospital
• Excellent transport links including LUAS and Dublin Bus routes
• Ideal for first-time buyers and investors
Location

Phone:
Connect with us:
Phone:
Connect with us:
Similar Properties
For Sale
- 3 Rooms
- 2 Baths
- 83 sq m
For Rent
- 1 Rooms
- 1 Baths
For Rent
- 2 Rooms
- 2 Baths
For Rent
- 2 Rooms
- 2 Baths
For Rent
- 1 Rooms
- 1 Baths
For Sale
- 2 Rooms
- 2 Baths
- 90 sq m
For Sale
- 2 Rooms
- 2 Baths
- 58 sq m
For Sale
- 1 Rooms
- 1 Baths
- 40 sq m




































