Quick Search:
Property ID:
Features
Description
Ray Cooke Auctioneers are delighted to present this superbly maintained one-bedroom apartment to the market, ideally located in the ever-popular Jervis Place development, just off vibrant Capel Street in the heart of Dublin City Centre.
No. 51 Jervis Place is a bright and spacious second-floor apartment boasting a south-west facing aspect, allowing for excellent natural light throughout. Presented in excellent condition, this property is sure to appeal to first-time buyers, investors, and those seeking a convenient city base.
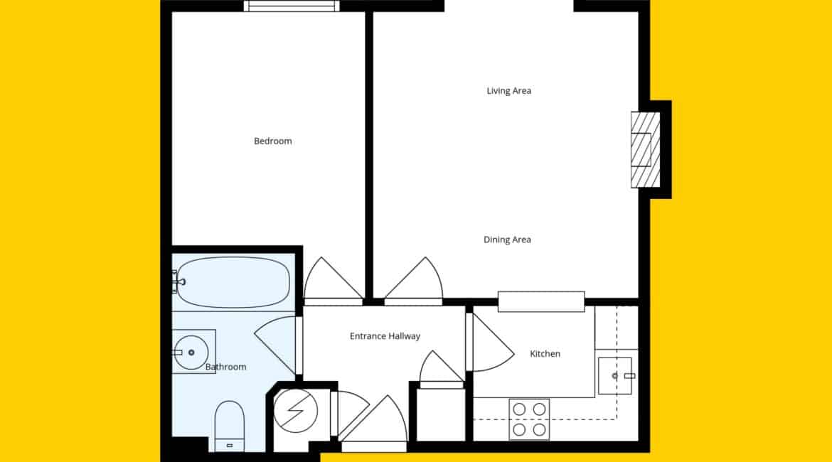
The accommodation comprises a welcoming entrance hallway with storage room, a spacious open-plan living and dining area, a well-appointed kitchen space, a large double bedroom with built-in wardrobes, and a modern family bathroom. The apartment further benefits from double glazing throughout, electric heating, and an intercom system for added security and convenience.
Jervis Place is a secure and professionally managed development featuring lift access and a peaceful communal courtyard. The location is simply unbeatable—just a short stroll from Henry Street, Jervis Shopping Centre, the Luas Red Line, and an array of cafés, restaurants, and cultural attractions on Capel Street, one of Dublin’s most exciting pedestrianised areas.
With a BER rating of C2 and management fees of approximately €1,937 per annum, this stylish apartment offers a perfect blend of comfort, convenience, and city living. Contact Ray Cooke Auctioneers on 0861985247 or 01 5411455 to arrange a viewing today.
Key Features
• Spacious and well-presented 1-bedroom, 1-bathroom apartment
• BER: C2
• Management fees: €1,937 per annum
• Second-floor unit with south-west facing aspect
• Double bedroom with built-in wardrobes
• Double glazing throughout
• Electric heating
• Modern family bathroom
• Storage room off entrance hallway
• Open-plan kitchen/living/dining area
• Intercom system
• Lift access and secure, professionally managed development
• Prime location just off Capel Street, close to shops, restaurants, Luas, and all city amenities
Location

Phone:
Connect with us:
Phone:
Connect with us:
Similar Properties
For Rent
- 1 Rooms
- 1 Baths
For Rent
- 2 Rooms
- 2 Baths
For Sale
- 2 Rooms
- 2 Baths
- 90 sq m
For Rent
- 1 Rooms
- 1 Baths
For Sale
- 2 Rooms
- 2 Baths
- 58 sq m
For Sale
- 1 Rooms
- 1 Baths
- 40 sq m
For Sale
- 1 Rooms
- 1 Baths
- 38 sq m
For Rent
- 1 Rooms
- 1 Baths
For Rent
- 1 Rooms
- 1 Baths
























































