Quick Search:
Property ID:
Features
Description
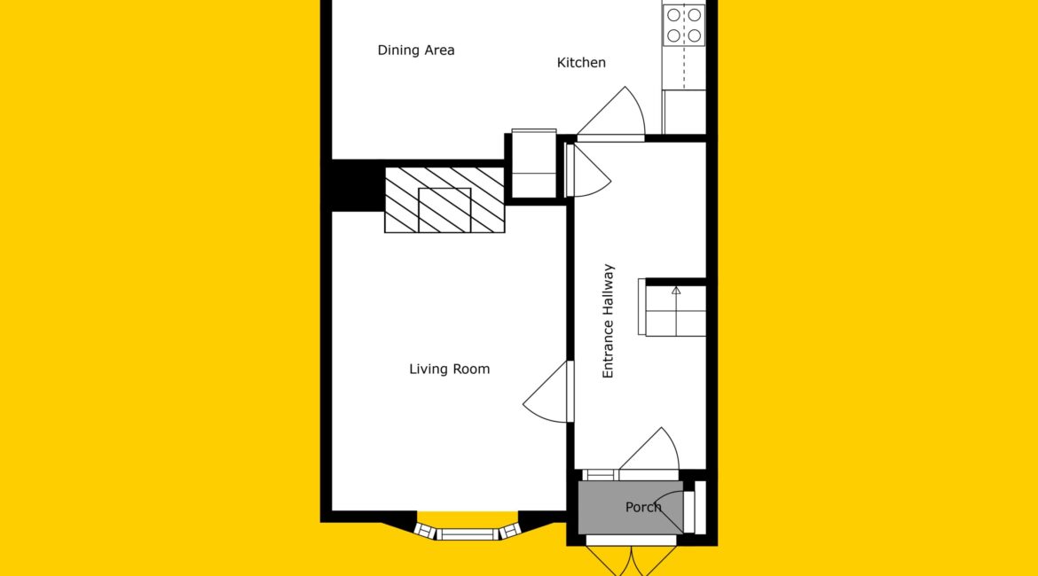
RAY COOKE AUCTIONEERS are delighted to present this three bedroom mid terrace property to the market in the popular Greenfort Lawns, Clondalkin. The Greenfort development finds itself within walking distance of a wide array of local amenities including convenience stores, primary and secondary schools, leisure facilities and not to mention having Liffey Valley Shopping Centre within a stone’s throw. On a transport note, the M50 motorway is easily accessible and there are a host of bus routes to the front of the development.Internal living accommodation of c. 80 Sqm can be found here and in brief consists of storm porch, entrance hall, lounge and fully fitted kitchen with dining area to the ground floor. Upstairs you will find 3 bedrooms, guest wc and the family bathroom. Externally you will find a fully enclosed sunny rear garden which is completely low maintenance. The front offers ample off-street parking. No. 62 comes to the market in good condition throughout and further benefits here include double glazed windows, light filled interior, gas fired central heating and quality flooring throughout. Due to location and opportunity, we see this property being extremely popular so please contact us at your earliest convenience to arrange a viewing.
Additional Features;
c.80 sq.m
BER B3
Overlooking Quaryvale Park
Ideal starter home
Gas fired central heating
Quality flooring throughout
Gas fired central heating
Close to an array of local parks
South facing rear garden
Spacious kitchen/diner
Close to Liffey Valley
The M50 within arm’s reach
Viewing highly advised!
Location

Phone:
Connect with us:
Phone:
Connect with us:
Similar Properties
For Rent
- 2 Rooms
- 2 Baths
For Sale
- 3 Rooms
- 1 Baths
- 90 sq m
For Sale
- 2 Rooms
- 1 Baths
For Sale
- 3 Rooms
- 1 Baths
- 83 sq m
For Sale
- 2 Rooms
- 2 Baths
- 66 sq m
For Sale
- 4 Rooms
- 4 Baths
- 165 sq m
For Sale
- 3 Rooms
- 2 Baths
- 87 sq m
For Sale
- 2 Rooms
- 2 Baths
- 66 sq m
For Rent
- 4 Rooms
- 2 Baths
For Rent
- 5 Rooms
- 2 Baths



























































































































