Quick Search:
Property ID:
Sale
Features
Description
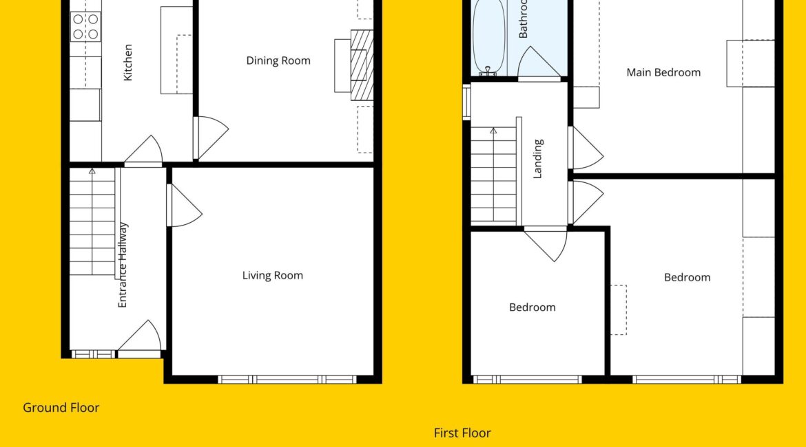
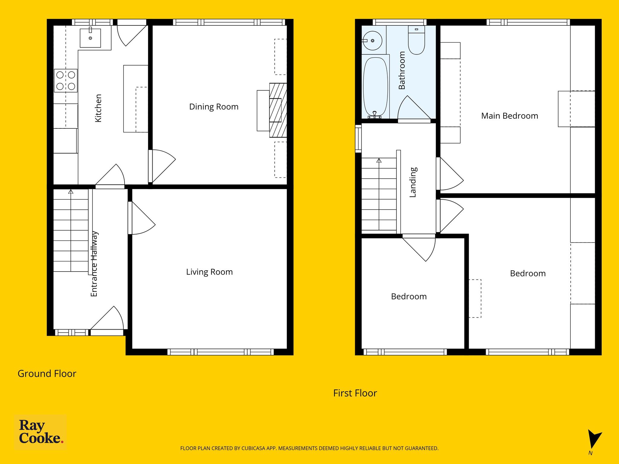
RAY COOKE AUCTIONEERS are proud to present this superb three-bedroom end of terrace ideally located on Violet Hill Road in Glasnevin.
Boasting an excellent location, this superb family home is within walking distance of Drumcondra and Phibsborough villages, with an array of local shops, cafes, and amenities. The Botanic Gardens, Griffith Park, Na Fianna GAA Club, and Dublin City Centre are all just a short stroll away. With close proximity to the Bon Secours and Mater hospitals, as well as top third-level institutions including Dublin City University and St. Patrick’s College and direct bus routes to Trinity College Dublin and University College Dublin, making this a most strategically positioned home. Public transport options are excellent, with a frequent orbital bus route passing closeby the estate, linking Clontarf Dart Station with Broombridge Green Line LUAS, Broombridge Train Station, and Heuston Station. Easy access to the M50 and Dublin Airport further enhances the connectivity of this prime location.
Bright and spacious living accommodation comprised of c. 90 sqm comprises of a storm porch, entrance hallway, living room to front, dining room and kitchen to rear. Upstairs hosts three bedrooms and family bathroom. This superb property boasts gas fired central heating, cobblelock, front driveway with gated side entrance and a south facing rear garden. An opportunity not to be missed. Viewing strongly advised; call Ray Cooke Auctioneers on 086 0469458 or 01 6995050 today for further information or to arrange viewing!!
Additional Features:
c. 90 sqm
BER D2
3 bed 1 bath
End of terrace
Light filled interior
Gas fired central heating
South facing orientation
Generous rear garden
Cobblelock front driveway & Gated side entrance
Mature & sought-after location
Excellent primary & secondary schools in the area
Easy access to M50 motorway
Botanic Gardens within walking distance
Within 20 minutes’ drive to Dublin airport
Bus routes and local shops on your doorstep
Early viewing highly advised!!
Directions:
Travelling on Old Finglas Road towards Mobhi Road, turn right onto Violet Hill Drive and take first left onto Violet Hill Road and No. 62 is located on your right-hand side.
Location

Phone:
Connect with us:
Phone:
Connect with us:
Mobhi Road Office
Phone:
Connect with us:
Similar Properties
For Sale
- 5 Rooms
- 3 Baths
- 146 sq m
For Rent
- 4 Rooms
- 1 Baths
For Sale
- 3 Rooms
- 2 Baths
- 109 sq m
For Sale
- 4 Rooms
- 2 Baths
- 138 sq m
For Sale
- 1 Rooms
- 1 Baths
- 44 sq m
For Rent
- 2 Rooms
- 1 Baths
For Sale
- 4 Rooms
- 2 Baths
- 130 sq m
For Sale
- 3 Rooms
- 2 Baths
- 110 sq m
For Sale
- 3 Rooms
- 1 Baths
- 90 sq m
For Sale
- 3 Rooms
- 1 Baths
- 94 sq m




















































