Quick Search:
Property ID:
Description
RAY COOKE AUCTIONEERS are very pleased to present this blank canvas 2-bedroom second floor apartment to the market, ideally situated in the ever sought after location of Moynihan Court, Tallaght.
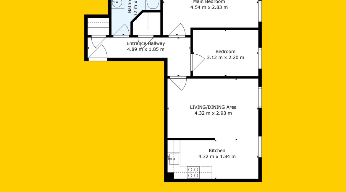
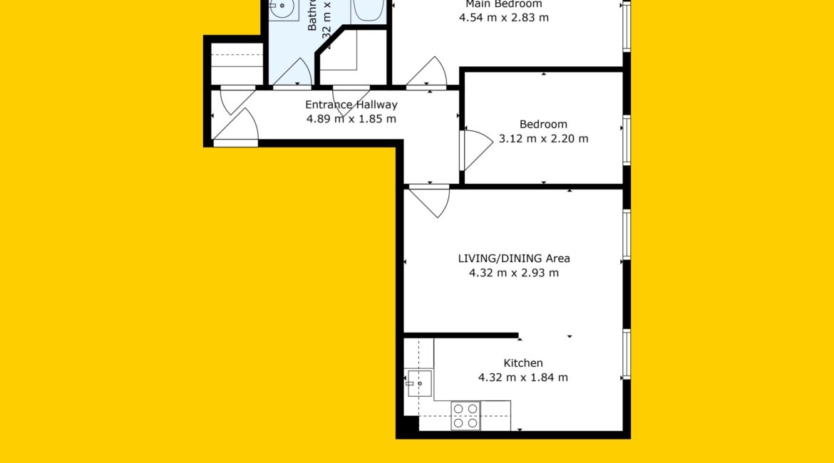
No. 66 Moynihan Court is a well-appointed 2 bedroom/1-bathroom apartment coming to the market in good condition throughout. Internal living accommodation of c. 59 sq.m comprises of an entrance hallways complete with 1 storage closet, a bright and spacious open plan kitchen/dining/living area, two double bedrooms and a main family bathroom.
66 Moynihan Court is perfectly situated in a well-connected neighbourhood, offering easy access to a range of amenities and transportation options. Just a short distance away, The Square Shopping Centre provides a variety of retail, dining, and entertainment options, making it a convenient destination for residents. For those commuting or traveling, the property is strategically located near the M50 motorway, offering quick connections to key areas in the city and beyond. Additionally, the LUAS tram line is within close reach, providing seamless access to the wider Dublin area, further enhancing the convenience of the location. Whether for shopping, work, or leisure, the surroundings of 66 Moynihan Court combine both modern urban living and the benefits of excellent connectivity.
Undoubtedly going to spark a great deal of interest from a wide range of buyers, early viewing is strongly advised. In order to arrange a viewing, please contact RAY COOKE AUCTIONEERS today!
Features;
- c. 59 sq.m
- BER C3
- 2 Bed / 1 Bath
- Second floor apartment
- Designated parking space
- Electric central heating
- Secure gated development
- The Square shopping centre within arm’s reach
- Management fee c. €1,900
Directions;
From the M50, take Exit 11 for Tallaght and head onto Tallaght Road (R113). Continue straight, passing The Square Shopping Centre on your left. Turn left onto Whitestown Way, then right onto Jobstown Road. 66 Moynihan Court will be on your left.
Location

Phone:
Connect with us:
Phone:
Connect with us:
Similar Properties
For Rent
- 3 Rooms
- 2 Baths
For Sale
- 3 Rooms
- 3 Baths
- 93 sq m
For Sale
- 3 Rooms
- 1 Baths
- 83 sq m
For Rent
- 2 Rooms
- 1 Baths
For Sale
- 3 Rooms
- 2 Baths
- 81 sq m
For Rent
- 2 Rooms
- 2 Baths
For Sale
- 3 Rooms
- 2 Baths
- 82 sq m
For Sale
- 3 Rooms
- 1 Baths
- 80 sq m
For Rent
- 2 Rooms
- 2 Baths
For Sale
- 3 Rooms
- 2 Baths
- 86 sq m





















































