Sale Agreed

79 Cherrywood Drive, Clondalkin, Dublin 22, D22 N2H6

3 Bed
1 Bath
76 Sq.m
€335,000

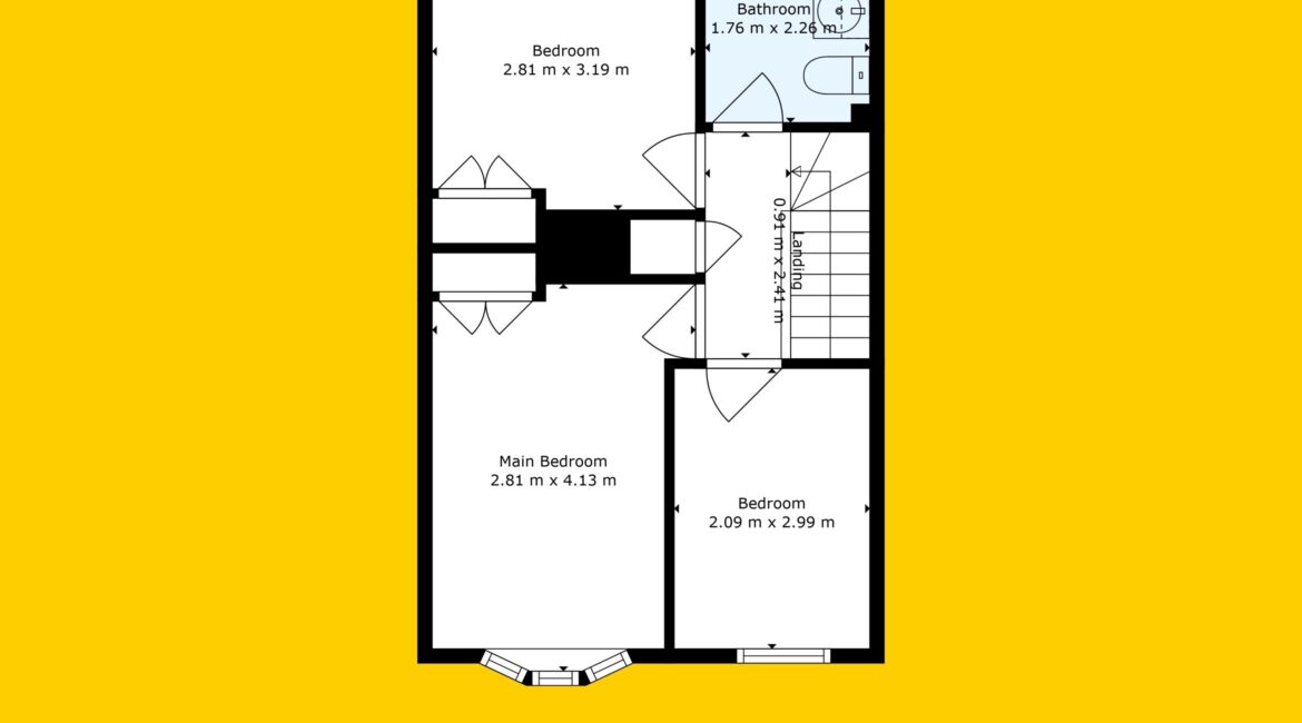
RAY COOKE AUCTIONEERS are delighted to present this three-bedroom semi-detached property to the market in the highly sought after Cherrywood Drive, Dublin 22. Cherrywood Drive is constantly in demand due to its central location, within striking distance of Clondalkin Village, The M50 Motorway, the N7 & Liffey Valley Shopping Centre. Transport links abound with bus routes at the entrance to the estate and the red LUAS line within a couple of minutes’ drive. Bright and airy interior living accommodation of c 76 Sq m comprises of entrance hall, lounge, kitchen/dining room, three bedrooms and main family bathroom. Externally the property benefits from a fully enclosed, private rear garden with patio area and storage shed whilst the front benefits from a driveway providing off road parking.  No. 79 is presented in good condition throughout and boasts gas fired central heating, double glazed windows and it also comes to the market with no onward chain. Call Ray Cooke Auctioneers for further information or to arrange viewing!

 

Features

BER D1

c. 76 sqm

3 Bed

Semi detached

Walking distance to Clondalkin village

No onward chain

Gas central heating

Private rear garden

Driveway to front

Close to all local amenities

Sought after development

Call today to arrange a viewing!

 

Directions

 

Heading towards the Cherrywood Development from Nangor place, go straight over the roundabout onto Cherrywood Crescent and then take your first left onto Cherrywood Drive, at the T-junction, turn right and then left and at the bottom of the road No. 79 will be directly in front of you.

Location

Agent
Sales Team 4
Office: 015541699
Mobile: 0860634889

Call for a Free Property Valuation 01 40 30 720

Search By Property Type

Sales

354 Properties

Lettings

99 Properties

Commercial

55 Properties

Thank you
The Form Was Sent Successfully