Quick Search:
Property ID:
Sale
Features
Description
RAY COOKE AUCTIONEERS are delighted to present No. 9 Cavalry Row, Stoneybatter, Dublin 7 to the market, a superb two-bedroom semi-detached residence ideally positioned in one of Dublin’s most vibrant and sought-after city neighbourhoods.
Cavalry Row is a quiet, mature residential enclave just moments from the heart of Stoneybatter Village, with an unrivalled selection of cafés, restaurants, bars and independent shops right on your doorstep. The Phoenix Park, TU Dublin Grangegorman, Smithfield and the city centre are all within easy walking distance, while excellent public transport links ensure swift access throughout the city.
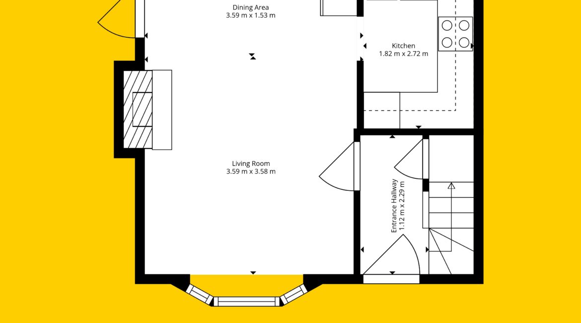
Measuring c.56.55 sq.m, this charming home is presented in good condition throughout and offers bright, well-proportioned accommodation, making it an ideal choice for first-time buyers, downsizers or investors alike.
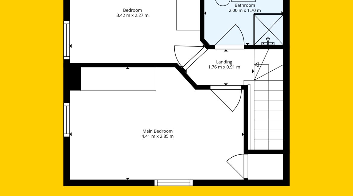
Living accommodation comprises of an inviting entrance hallway, a spacious living room to the front with feature fireplace, and a fully fitted kitchen to the rear with ample wall and floor units. Upstairs hosts two generous double bedrooms and a modern family bathroom complete with shower facilities.
To the side lies a private, low-maintenance courtyard, perfect for outdoor dining or relaxing in a city-centre setting. The property further benefits from electric heating, permit parking, and a highly efficient layout that maximises space throughout.
Given its prime location, strong rental appeal and great condition, this property is sure to attract significant interest.
Key Features
• Approx. 56.55 sq.m
• BER D2
• 2-bedroom semi-detached home
• Prime Stoneybatter location
• Open plan layout
• Quality flooring
• Light filled interior
• Double glazed windows
• Modern fully tiled bathroom with shower
• Private side courtyard
• On street permit parking
• Electric heating
• Ideal for first time buyers
• Management fees approx. €330 p.a.
Early viewing is strongly advised.
Location

Phone:
Connect with us:
Phone:
Connect with us:
Similar Properties
For Rent
- 1 Rooms
- 1 Baths
For Rent
- 1 Rooms
- 1 Baths



































