Quick Search:
Property ID:
Features
Description
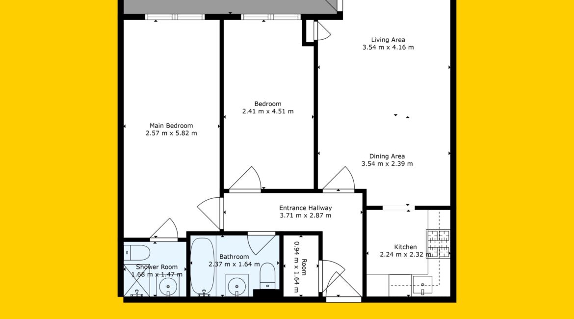
RAY COOKE AUCTIONEERS take great pleasure in presenting this two bedroom ground floor apartment located in the Shalimar Development – one of Dublin 22’s most sought after developments. located just off the Monastery Road , this development finds itself a mere stone’s throw from the N7 Motorway, the M50 Motorway and the Red Cow Luas stop. The property is also a short walk from Clondalkin Village with its wide range of schools, shops, bars and restaurants amongst many other amenities. Open and spacious internal living accommodation of c. 65 sq m comprises of entrance hallway, generous storage room, main family bathroom, two double bedrooms with master ensuite, open plan living/dining room and kitchen area. A patio door from the living area leads out to a spacious private balcony whilst you also benefit from 2 x parking spaces in the superb gated complex. This ideally located and well proportioned property is presented in great condition throughout, it boasts gas fired central heating, designated underground parking and is offered to the market with no onward chain. This property is sure to be popular with first time buyers looking to take that first step onto the property ladder. Early viewing is highly advised – call Ray Cooke Auctioneers today for further information or to arrange a viewing!
Features
BER B3
c.73 Sqm
Management fee €1,902 per annum
2 bed, 2 bath
2 Parking spaces
Secure gated development
Gas central heating
Sought after location
Close to Red Cow Luas
Walking distance to Clondalkin Village
Fantastic opportunity
Call today to arrange a viewing!
Directions
If travelling out of Clondalkin Village proceed along Monastery Road and at the large roundabout at the top of Woodford Hill take the 2nd exit. Pass Monastery Gate on the left hand side and at the next roundabout take your 1st exit where you will encounter the gates to the development.
Location

Phone:
Connect with us:
Phone:
Connect with us:
Similar Properties
For Rent
- 2 Rooms
- 2 Baths
For Sale
- 3 Rooms
- 1 Baths
- 90 sq m
For Sale
- 2 Rooms
- 1 Baths
For Sale
- 3 Rooms
- 1 Baths
- 83 sq m
For Sale
- 2 Rooms
- 2 Baths
- 66 sq m
For Sale
- 4 Rooms
- 4 Baths
- 165 sq m
For Sale
- 3 Rooms
- 2 Baths
- 87 sq m
For Sale
- 2 Rooms
- 2 Baths
- 66 sq m
For Rent
- 4 Rooms
- 2 Baths
For Rent
- 5 Rooms
- 2 Baths



































