Quick Search:
Site @ 66 La Touche Road, Bluebell, Dublin 12, D12TN35
Property ID:
88267
Description
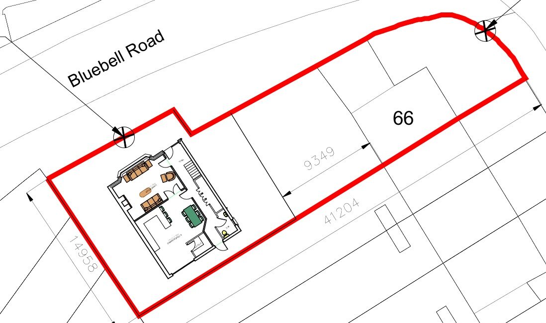
RAY COOKE AUCTIONEERS take great pleasure in presenting to the market this prime SITE WITH PLANNING PERMISSION wonderfully positioned @ La Touche Road, Bluebell, Dublin 12.
Application reference – 3119/25
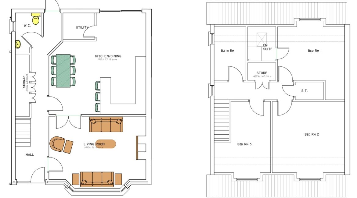
Proposed development – The development will consist of a proposed detached dormer bungalow with vehicular entrance onto Bluebell Road and all associated site works.
Call Ray Cooke Auctioneers to discuss in more detail.
Location
Address: Site @ 66 La Touche Road, Bluebell, Dublin 12, D12TN35

Ross McHugh
Phone:
Connect with us:
Agent:
[agent_name]
Mobile Phone:
Landline Phone:
Email:
Phone:
Email:
Connect with us:
Similar Properties
For Rent
La Touche Rd, Bluebell, Dublin 12
€900
/ mo
- 1 Rooms
- 1 Baths
For Rent
Grove Court, Naas Road, Bluebell, Dublin 12
€3 200
/ mo
- 4 Rooms
- 2 Baths
Site @ 66 La Touche Road, Bluebell, Dublin 12, D12TN35
€165 000







