Quick Search:
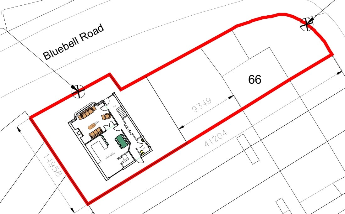
Site @ 66 La Touche Road, Bluebell, Dublin 12, D12TN35
Property ID:
88267
Description
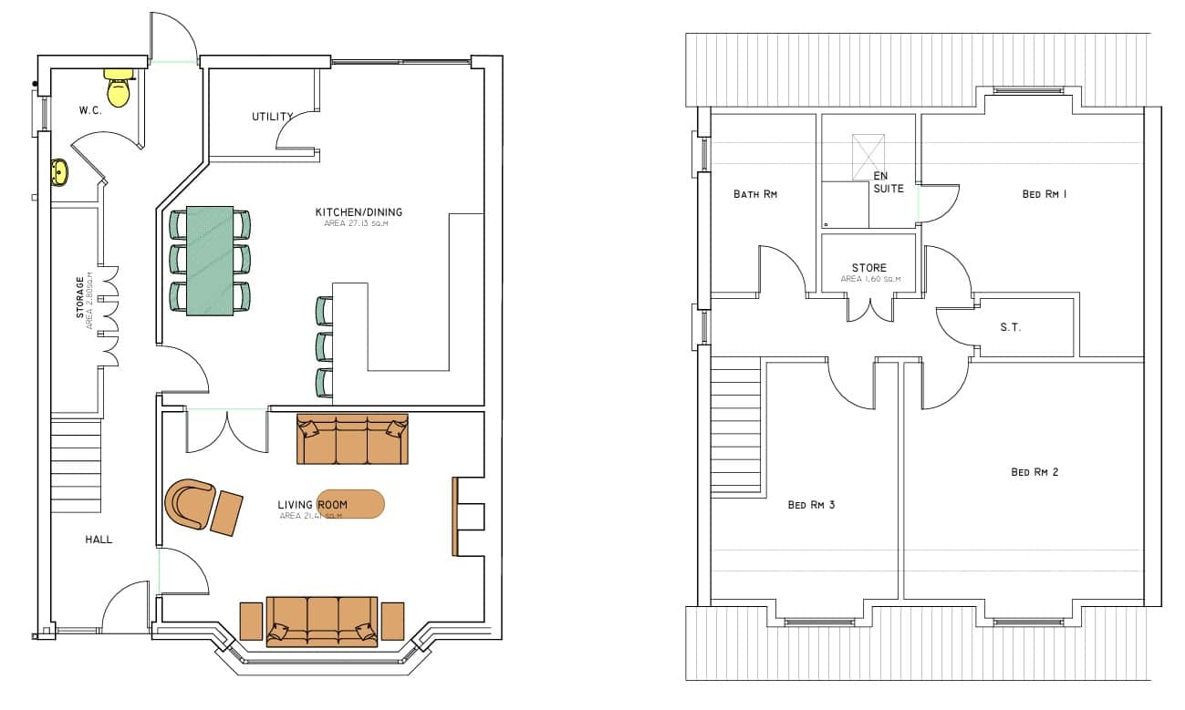
RAY COOKE AUCTIONEERS take great pleasure in presenting to the market this prime SITE WITH PLANNING PERMISSION wonderfully positioned @ La Touche Road, Bluebell, Dublin 12.
Application reference – 3119/25
Proposed development – The development will consist of a proposed detached dormer bungalow with vehicular entrance onto Bluebell Road and all associated site works.
Call Ray Cooke Auctioneers to discuss in more detail.
Location
Address: Site @ 66 La Touche Road, Bluebell, Dublin 12, D12TN35

Ross McHugh
Phone:
Connect with us:
Agent:
[agent_name]
Mobile Phone:
Landline Phone:
Email:
Phone:
Email:
Connect with us:
Similar Properties
For Sale
30 La Touche Road, Bluebell, Dublin 12, D12 WF66
€325 000
- 2 Rooms
- 2 Baths
- 70 sq m
Grove Court, Naas Road, Bluebell, Dublin 12
€3 200
- 4 Rooms
- 2 Baths
Site @ 66 La Touche Road, Bluebell, Dublin 12, D12TN35
€165 000







