Quick Search:
Property ID:
Sale
Features
Description
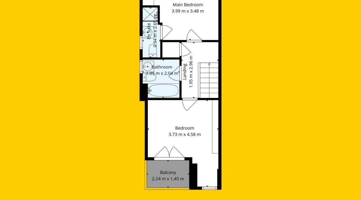
RAY COOKE AUCTIONEERS are delighted to present this fantastic two-bedroom Duplex to the market ideally located in the much sought after Erris Square, Waterville, Dublin 15. The Waterville development is situated in a prime position, close to a large park with a lake, within walking distance to many amenities including the NAC, Connolly Hospital, Institute of Technology and Blanchardstown Shopping Centre to name a few. Transport wise you will find easy access to M3 and M50 motorways whilst also being well serviced by public transport links in and out of the city centre. Bright and open living accommodation of c. 81 Sqm comprises of entrance hallway, kitchen/breakfast, WC and open plan lounge/dining to the ground floor. upstairs you will find two double bedrooms with the master benefitting from ensuite and also the family bathroom. Externally you will find a private patio area opening up to a large gated communal garden. No. 1 is presented as a blank canvas with no onward chain making this an ideal opportunity for a variety of buyers. Based on size and location we know this will be extremely popular so call Ray Cooke Auctioneers today for further information or to arrange a viewing!
Additional Features;
Ber C1
c.81 sqm
€1155 Management fees per annum
Highly sought after location
No onward chain
Private rear patio
Communal parking
Two bedrooms
Three bath
Duplex
Close to all local amenities
Double glazing throughout
Viewing highly advised!
Directions
From Snugborough Road, head along Waterville Road, continue past Waterville park until your first right turn onto Erris Square, No. 1 will be immediately on your left hand side.
Location

Phone:
Connect with us:
Phone:
Connect with us:
Similar Properties
- 2 Rooms
- 1 Baths
For Sale
- 1 Rooms
- 1 Baths
- 55 sq m
For Sale
- 3 Rooms
- 1 Baths
- 108 sq m
For Sale
- 3 Rooms
- 2 Baths
- 116 sq m
For Sale
- 3 Rooms
- 2 Baths
- 90 sq m
For Sale
- 2 Rooms
- 2 Baths
- 55 sq m
For Sale
- 2 Rooms
- 2 Baths
- 78 sq m
For Sale
- 2 Rooms
- 3 Baths
- 81 sq m
- 2 Rooms
- 2 Baths
- 2 Rooms
- 1 Baths



























































