Quick Search:
Property ID:
Sale
Features
Description
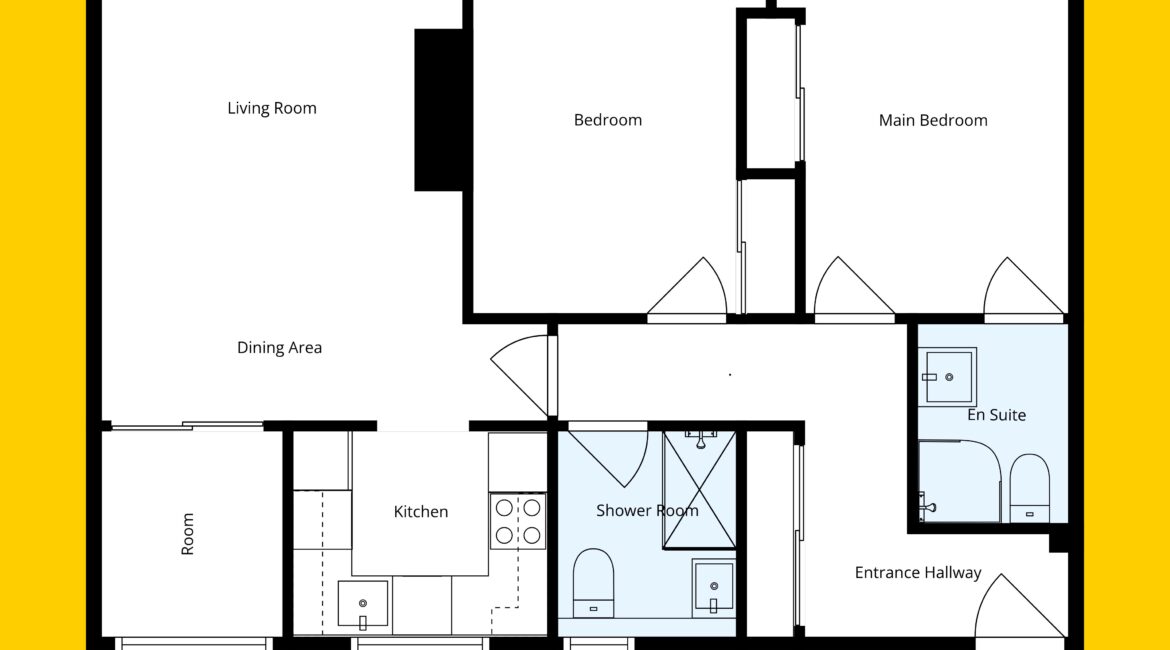
RAY COOKE AUCTIONEERS are delighted to present this superb two-bedroom, two-bathroom apartment to the Dublin 2 property market. Situated within the private and well-maintained Ardilaun Court development on Cuffe Lane, No. 12 offers an exceptional opportunity to acquire a bright and spacious city-centre residence in one of Dublin’s most sought-after locations.
The location is second to none, just a short stroll from St. Stephen’s Green and within immediate reach of Grafton Street, Camden Street, and an array of cafés, restaurants, and cultural amenities. Excellent transport links are available nearby, including the Luas Green Line and multiple Dublin Bus routes, ensuring convenient access across the city.
Extending to approximately 71 sq. m., the accommodation is well laid out and filled with natural light. The property comprises an inviting entrance hallway with storage, leading into a generous open-plan living and dining area with a fully fitted kitchen. This space is ideal for both everyday living and entertaining.
There are two spacious double bedrooms, both with fitted wardrobes. The main bedroom benefits from an ensuite bathroom, while a separate main bathroom serves the second bedroom.
Set within a secure gated development, the property offers a peaceful living environment while remaining at the centre of Dublin city life. No. 12 Ardilaun Court will appeal to a wide range of purchasers including owner-occupiers, investors, and those seeking a prime city base.
Early viewing is highly recommended.
FEATURES
– c. 71 sq. m.
– BER D1
– Management fees c. €4,200
– Two double bedrooms / Two bathrooms
– Prime Dublin 2 location
– Short walk to St. Stephen’s Green
– Bright and well-proportioned accommodation
– Secure gated development
– Fully fitted kitchen
– Master bedroom with ensuite
– Fitted wardrobes
– Excellent transport links
– Every amenity on your doorstep
Location
Similar Properties
For Sale
- 1 Rooms
- 1 Baths
- 55 sq m
For Rent
- 2 Rooms
- 2 Baths
For Sale
- 2 Rooms
- 2 Baths
- 71 sq m
For Rent
- 2 Rooms
- 1 Baths
- 1 Rooms
- 1 Baths
For Sale
- 479 sq m
- 2 Rooms
- 1 Baths
























































