Quick Search:
Property ID:
Features
Description
RAY COOKE AUCTIONEERS are proud to present this exceptional two-bedroom, top-floor apartment to the market, ideally positioned within the exclusive and beautifully maintained development of The Waterways in Sallins, County Kildare.
Nestled in a truly enviable location, No.45 Station House offers the perfect balance of tranquillity and convenience. Both Naas and Sallins are just moments away, providing an excellent selection of cafés, bars, boutiques, schools, and leisure amenities. Commuters are exceptionally well catered for, with Sallins Train Station within walking distance and the N7 and M4 road networks offering swift access to Dublin City in approximately 20 minutes by car.
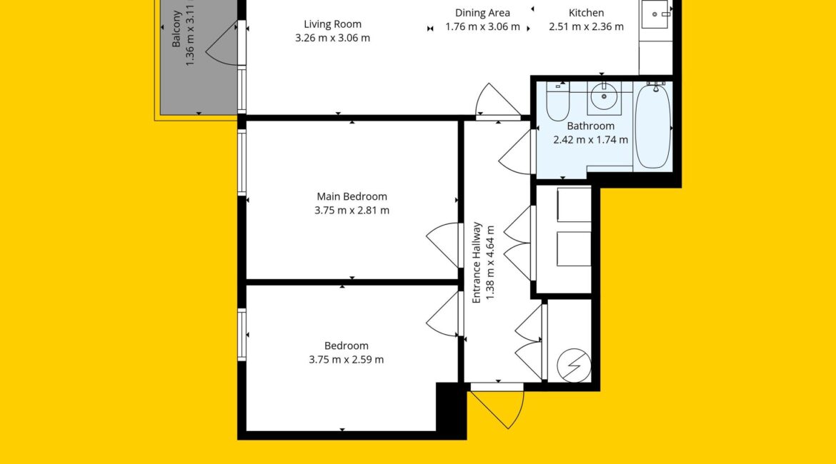
Extending to c.56sqm of bright and intelligently designed living space, the accommodation comprises a welcoming entrance hallway with additional storage, two generously proportioned double bedrooms, a well-appointed main bathroom, a fully fitted kitchen with integrated appliances and a spacious living room. The light-filled lounge opens onto a substantial private balcony overlooking the beautifully landscaped central courtyard — the perfect setting for morning coffee or evening relaxation.
No. 45 is presented in excellent condition throughout and further benefits from electric heating and access to an impressive communal roof terrace, ideal for entertaining or unwinding while enjoying elevated views of the development.
Combining prime location, stylish interiors, and superb connectivity, this outstanding property is certain to appeal to first-time buyers, downsizers, and investors alike. Early viewing is highly recommended — contact Ray Cooke Auctioneers today to arrange your appointment.
Features
c. 56sqm
Top Floor Apartment
Integrated appliances
Built in wardrobes
Double glazed windows
Electric heating
2 bed / 1 bath
Local shops, post office etc located in the development
Sallins train station on your doorstep
Ample parking
Magnificent location within arms reach of M7 Motorway
Within minutes of Naas & Sallins
Built c.2011
VIEWING HIGHLY ADVISED
BER
BER: C2
Directions
Eircode: W91XK74
Location

Phone:
Connect with us:
Phone:
Connect with us:
Rathcoole Office
Phone:
Connect with us:
Similar Properties
For Sale
- 3 Rooms
- 3 Baths
- 92 sq m
For Sale
- 3 Rooms
- 2 Baths
- 94 sq m
- 2 Rooms
- 1 Baths
- 4 Rooms
- 4 Baths
- 5 Rooms
- 3 Baths










































