Quick Search:
Property ID:
Sale
Features
Description
RAY COOKE AUCTIONEERS is delighted to present 7 Oak Drive to the market – A fantastic three-bedroom semi-detached family home ideally positioned on a cul de sac location in Santry, Dublin 9.
No.7 enjoys a convenient location in a highly sought-after estate of Royal Oak, surrounded by an impressive array of amenities. Residents have excellent local shops, schools, and various sporting and recreational facilities. This superb family home is conveniently close to Glasnevin, Santry, and Drumcondra Villages, as well as Na Fianna GAA Club and Clontarf Golf Club. Royal Oak is a well-established residential area offering exceptional convenience, with DCU and Beaumont Hospital. Public transport is readily available with several bus routes within walking distance, while Dublin City Centre and Dublin Airport are easily accessible. Additionally, the M1 and M50 Motorways, as well as the Port Tunnel, are within easy reach. The property is set to benefit greatly from the planned MetroLink, with a proposed station located just a short distance from Royal Oak in Northwood.
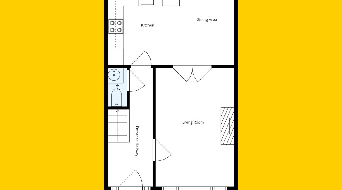
This fantastic family home offers approximately 80 sq.m of well-appointed living space comprising of an inviting entrance hallway with fully tiled guest WC, large living room with modern feature wall and double doors leading into a fully fitted modern kitchen with integrated appliances and dining area with tiled flooring and access to south facing rear garden. Upstairs hosts 3 generous bedrooms with built in wardrobes and a large fully tiled family bathroom. This fantastic family home is presented in turn key condition throughout having been meticulously maintained by its current owners and boasts numerous features, including gas-fired central heating, high quality flooring throughout, double-glazed windows throughout, extended imprinted front driveway, garden tap and outdoor sockets, all new radiators, composite front door and canopy, off-street parking, gated side entrance and a south facing rear garden.
Don’t miss this fantastic opportunity to own a home of this calibre! Viewing is strongly advised; call Ray Cooke Auctioneers on 086 0469458 or 01 6995050 today for further information or to arrange viewing.
Additional Features;
– 80 sq.m
– BER C2
– 3 bed / 2 bath
– Semi Detached
– Gas fired central heating
– Turn key condition
– South facing orientation
– Composite Front Door
– Lage rear garden
– Double glazed windows throughout
– Ample off-street parking
– Mature & sought-after location
– Excellent primary, secondary schools & DCU
– Easy access to M50 motorway
– Bus routes to City Centre close by
– Close to local amenities
– Within 15 minutes’ drive to Dublin Airport
– Ideal for first time buyers and those thinking about upsizing
– Early viewing is highly advised
Location

Phone:
Connect with us:
Phone:
Connect with us:
Similar Properties
For Sale
- 3 Rooms
- 1 Baths
- 87 sq m
For Sale
- 2 Rooms
- 1 Baths
- 48 sq m
For Sale
- 1 Rooms
- 1 Baths
- 44 sq m
For Sale
- 4 Rooms
- 1 Baths
- 120 sq m
For Sale
- 2 Rooms
- 2 Baths
- 66 sq m
For Sale
- 3 Rooms
- 2 Baths
- 80 sq m
For Sale
- 3 Rooms
- 1 Baths
- 90 sq m
For Sale
- 3 Rooms
- 1 Baths
- 84 sq m
For Sale
- 1 Rooms
- 1 Baths
- 43 sq m




















































