Quick Search:
Property ID:
Sale
Features
Description
RAY COOKE AUCTIONEERS are proud to present this exquisite two-bedroom, two-bathroom terraced home to the Dublin 8 market. this property offers a rare opportunity to live in one of the city’s most vibrant and historic neighbourhoods where city life flows seamlessly with local charm.
The location is truly unbeatable for those seeking the ultimate city lifestyle. Situated in the heart of historic Christchurch, you are within a short stroll of Temple Bar, Grafton Street, and the Guinness Storehouse. Every conceivable amenity, from world-class restaurants to trendy cafes and shops, is right on your doorstep. Excellent transport links, including the Luas and numerous bus routes, make navigating the city effortless.
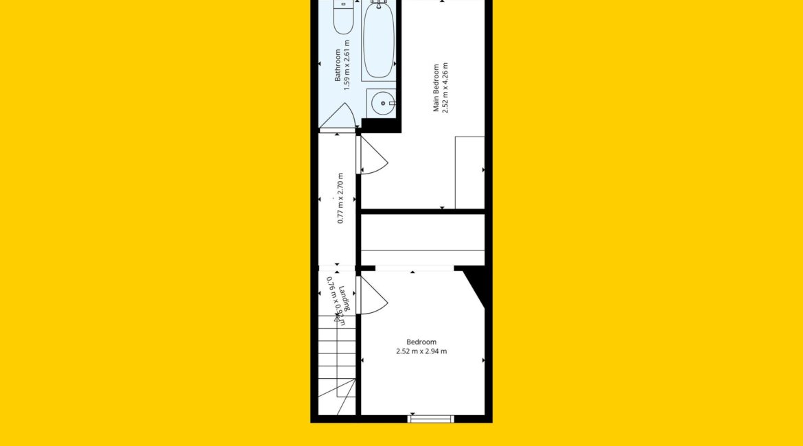
The interior of this 65 sqm home is a masterclass in style and space management. Upon entering, you are greeted by beautiful wood flooring that flows seamlessly throughout the ground floor. The layout consists of a bright, modern, and stylish kitchen and dining area. This is separated from the main living room by elegant double doors, allowing for an open-plan feel or a more cosy, private atmosphere as desired. The property also features classic sash windows that add a touch of traditional character to the contemporary finish.
Upstairs, the accommodation comprises two generous bedrooms, both finished to an exceptional standard. Each bedroom is equipped with bespoke built-in wardrobes featuring lovely mirrored fronts, which maximize both storage and light. The upper floor is completed by a stunning, modern main with high-quality tiling and fixtures.
To the rear, the property features a private, south-facing rooftop area, providing a discreet outdoor escape in the center of the city.
Viewing is highly advised. Call RAY COOKE AUCTIONEERS today for further information or to arrange a viewing!
Key Features:
c.65 sq m
BER D2
2 Bed/ 1 Bath
Beautiful wood flooring throughout
Modern and stylish fully fitted kitchen
Classic sash windows throughout
Bespoke fitted wardrobes
Gas central heating
Prime Christchurch location
Every amenity imaginable right on your doorstep
Ideal for first time buyers, and growing families
Directions:
Traveling from Dame Street toward Christchurch Cathedral, continue straight onto High Street. At the junction with Nicholas Street, turn right toward the quay. Take the next left turn onto Cook Street. Continue straight for approximately 200 meters, passing the old city walls, and Number 89 will be located on your left-hand side.
Location

Phone:
Connect with us:
Phone:
Connect with us:
Similar Properties
For Sale
- 2 Rooms
- 1 Baths
- 2 Rooms
- 1 Baths
For Sale
- 2 Rooms
- 1 Baths
For Sale
- 2 Rooms
- 2 Baths
- 81 sq m
For Rent
- 2 Rooms
- 2 Baths
- 1 Rooms
- 1 Baths



















































