Quick Search:

>
>
9 De Selby Rise, Tallaght, Dublin 24 D24 P5P6
9 De Selby Rise, Tallaght, Dublin 24 D24 P5P6
€365 000

Property ID:

 102597
Sale
BER Rating:
C1
Type:
Bedrooms:
3
Bathrooms:
2
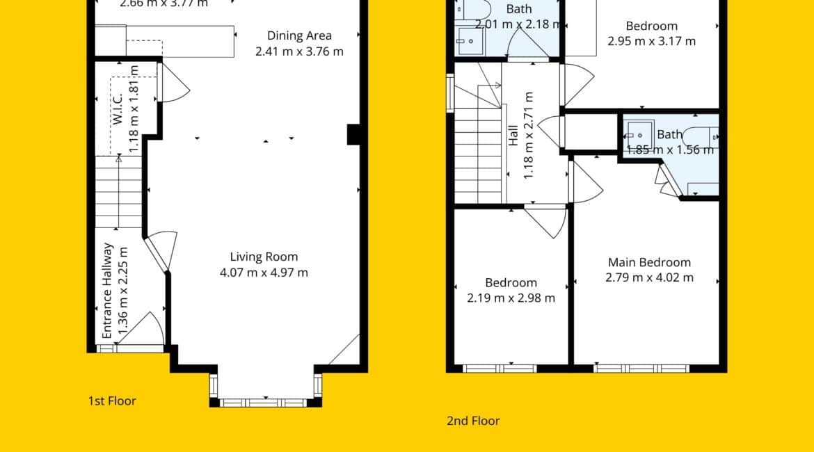
Property size:
81 sq m
Features
Parking
Public Transport
Garden
Central Heating
Local Amenities
Description

RAY COOKE AUCTIONEERS proudly present No.9 De Selby Rise; a three-bedroom semi-detached home positioned in the heart of Tallaght.

 

This home offers a turn-key opportunity for its new buyers! Consisting of a modern open plan living/kitchen area, three spacious bedrooms (one with en-suite) and glamorous main bathroom. Outside presents a generous rear garden cocooned by trees ensuring privacy and a sense of calmness . To the front, the home benefits from an ample driveway and large side access- offering both convenience and comfort at all times.

 

Located in a strong residential area of Tallaght, the surroundings offer excellent local amenities and convenient transport links- ideal for families and commuters seeking a strong community feel with everything close to hand.

 

Additional features:

  • 81sq.m
  • BER C1
  • 3 Bed/ 2 Bath
  • Semi-detached home
  • Immaculate condition throughout
  • Gas central heating
  • Ample front parking
  • Generous rear garden
  • Situated in the heart of Tallaght
  • Ideal home for first-time buyers, second-time buyers & young families!

 

Directions:

 

Take the exit for Citywest, continue onto the local road towards Citywest/Tallaght. Follow signs for Tallaght and local road De Selby Lawns where 9 De Selby Rise.

Location
Address: 9 De Selby Rise, Tallaght, Dublin 24
Agent:
[agent_name]
Mobile Phone:
Landline Phone:
Email:

Phone:

Email:
Connect with us:

Rathcoole Office

Phone:

Email:
Connect with us:

Similar Properties

WhatsApp Image 2025-12-23 at 11.41.41 (2)

For Rent

Beechdale Crescent, Ballycullen, Firhouse, Dublin 24
€2 850
/ mo
001

For Sale

2 Raheen Drive, Tallaght, Dublin 24
€375 000
1

For Sale

18 Kilmartin Green, Tallaght, Dublin 24
€280 000
IMG_5094

For Rent

Killininny Court, Firhouse Road, Firhouse, D24
€2 000
/ mo
1

For Sale

9 De Selby Rise, Tallaght, Dublin 24
€365 000
Frontpic

For Rent

Hazelgrove Court, Tallaght, Dublin 24
€2 200
/ mo
1

For Sale

12 Swiftbrook Avenue, Tallaght, Dublin 24
€240 000
37 Sundale Close, Tallaght, Dublin 24 D24 WF8C

For Sale

37 Sundale Close, Tallaght, Dublin 24
€285 000
IMG_3889

For Rent

Hazelgrove Court, Tallaght, Dublin 24
€2 025
/ mo
10 Swiftbrook Avenue, Tallaght, Dublin 24 D24 P6P6

For Sale

10 Swiftbrook Avenue, Tallaght, Dublin 24
€245 000

9 De Selby Rise, Tallaght, Dublin 24 D24 P5P6

Full Name: *
Email Address: *
Phone Number: *
Message: *
Privacy *

9 De Selby Rise, Tallaght, Dublin 24 D24 P5P6

Property Type:
Full Name: *
Email: *
Phone: *
Address:
Additional Information:
Privacy *

9 De Selby Rise, Tallaght, Dublin 24 D24 P5P6

Full Name: *
Email Address: *
Phone Number: *
Message: *
Privacy *