Quick Search:
Property ID:
Sale
Features
Description
RAY COOKE AUCTIONEERS are delighted to present this fantastic Four-bedroom detached family home ideally situated in a cul de sac position in Grange Park Road in Raheny, Dublin 5.
This exceptional detached family home is ideally located in the heart of Raheny, just a short stroll from Raheny Village and St Anne’s Park. The property benefits from an excellent range of local amenities, including shops, cafes, restaurants, bars, and a variety of sports clubs and recreational facilities. There are excellent primary and secondary schools closeby. The area is very well served by public transport, with both Raheny and Kilbarrack DART stations nearby, offering easy access to Dublin city centre. The location is also highly convenient for commuters, with the M1, M50, Malahide Road, and Dublin Airport all within easy reach, along with easy access to IFSC, East Point Business Park, and the Docklands.
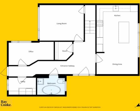
Bright and spacious internal living accommodation extending to c. 128 sq.m comprises of a welcoming entrance hallway, living room filled with natural light, a modern fully fitted kitchen with island and dining area, there is a dedicated office, a convenient utility room and a modern bathroom with a beautiful freestanding bathtub all located downstairs. Upstairs hosts 4 generous bedrooms and a main family bathroom. The property is presented in excellent condition throughout offering a turn key property and, benefiting from a B3 Energy Rating, double-glazed windows, quality flooring throughout, gas-fired central heating, front driveway and a large rear garden with gated side entrance. This fantastic property will appeal to all types of buyers including first time buyers, those thinking of upsizing and investors.
An opportunity not to be missed. Viewing strongly advised; call RAY COOKE AUCTIONEERS on 086 0469458 or 01 6995050 today for further information or to arrange viewing!!
Additional Features;
– c. 128 Sqm
– BER B3
– 4 bed 2 bath
– Detached
– Turn Key condition
– Gas fired central heating
– Front Driveway
– Generous sized bedrooms
– Large Rear Garden
– Quality flooring throughout
– Modern Kitchen
– Double glazed windows
– Mature and sought-after area
– Excellent primary and secondary schools in the area
– Within walking distance of Raheny Village
– Multiple bus routes to the City Centre
– Minutes from Raheny DART station
– Ideal for first time buyers and families looking to upsize
– Early viewing highly advised
Location

Phone:
Connect with us:
Phone:
Connect with us:
Mobhi Road Office
Phone:
Connect with us:
Similar Properties
For Rent
- 1 Rooms
- 1 Baths
For Sale
- 4 Rooms
- 2 Baths
- 128 sq m
For Sale
- 3 Rooms
- 1 Baths
- 101 sq m
For Sale
- 3 Rooms
- 1 Baths
- 72 sq m
For Sale
- 3 Rooms
- 1 Baths
- 79 sq m
- 3 Rooms
- 2 Baths
- 3 Rooms
- 1 Baths
























































































