Quick Search:
Property ID:
Sale
Features
Description
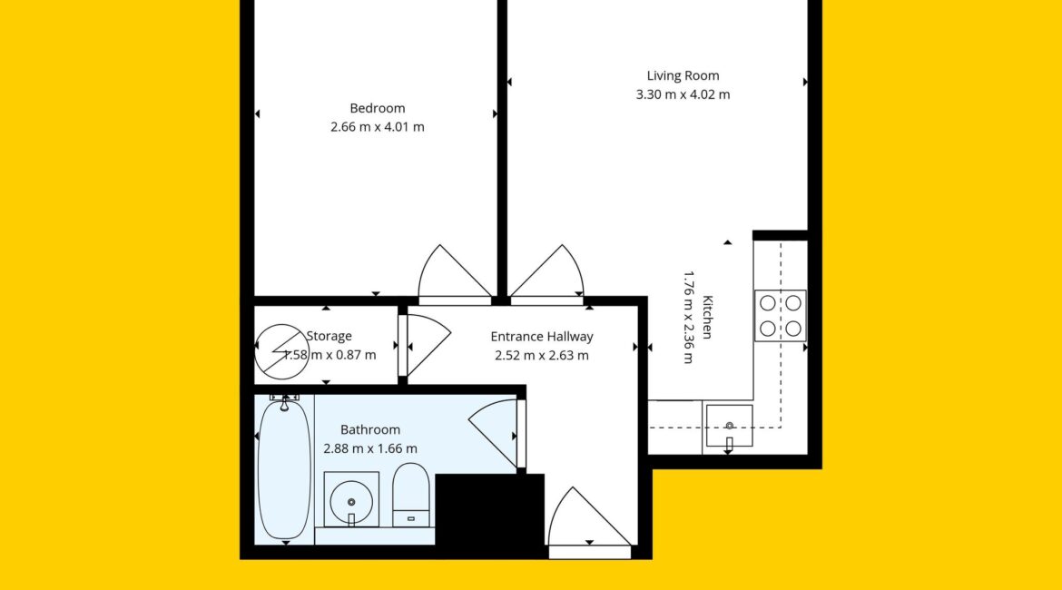
RAY COOKE AUCTIONEERS are delighted to present this superb one-bedroom, one-bathroom ground floor apartment to the market at Apt 63 Seven Oaks, Sarsfield Road, Dublin 10. Ideally positioned within a well-established and mature development, this property offers a fantastic opportunity to acquire a comfortable home in a highly convenient and sought-after location.
Seven Oaks enjoys a prime setting along Sarsfield Road, offering easy access to Dublin City Centre while maintaining a and residential feel. The area is well serviced by a host of local amenities including shops, cafés, schools, and recreational facilities. Nearby conveniences such as Liffey Valley Shopping Centre and Park West Business Park are just minutes away, while excellent transport links, including multiple Dublin Bus routes and close proximity to the N4 and M50 road networks, ensure seamless connectivity to the city and beyond.
The accommodation comprises a bright and well-laid-out interior, featuring an entrance hallway with ample storage, a spacious double bedroom, a main bathroom, and an open plan kitchen and living area. The ground floor setting provides ease of access and added practicality, making it particularly appealing to a wide range of buyers. The property further benefits from gas-fired central heating and generous storage throughout.
Apt 63 comes to the market in good condition along with being vacant with no onward chain. This home is ideally suited to first-time buyers or those looking to downsize in a convenient and settled neighbourhood.
Key Features:
- 1 bed / 1 bath ground floor apartment
- C. 38 sqm
- BER C1
- Management fees c.€1495 per annum
- Well-maintained and sought after development
- Gas-fired central heating
- Vacant with no onward chain
- Ample storage throughout
- Convenient ground floor access
- Excellent location with strong transport links
- Close to Liffey Valley Shopping Centre & Park West
- Easy access to N4 & M50 road networks
- Ideal for first-time buyers, investors, or downsizers
Directions
Eircode – D10 PF24
Location

Phone:
Connect with us:
Similar Properties
For Sale
- 2 Rooms
- 2 Baths
- 60 sq m
For Sale
- 2 Rooms
- 1 Baths
- 71 sq m
For Sale
- 3 Rooms
- 1 Baths
- 81 sq m
For Rent
- 1 Rooms
- 1 Baths
For Sale
- 4 Rooms
- 1 Baths
- 113 sq m
For Rent
- 1 Rooms
- 1 Baths
For Sale
- 4 Rooms
- 2 Baths
- 101 sq m
For Rent
- 2 Rooms
- 1 Baths
For Sale
- 2 Rooms
- 2 Baths
- 84 sq m
For Sale
- 2 Rooms
- 1 Baths
- 75 sq m






















