Quick Search:
Property ID:
Sale
Features
Description
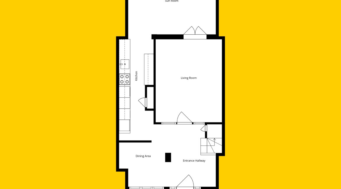
RAY COOKE AUCTIONEERS are proud to introduce this fantastic three- bedroom mid terrace family home with a shared side entrance ideally located on this quiet road in Kilbarrack, Dublin 5. Briarfield Grove is less than a 10 minute walk to Kilbarrack Dart station (Kilbarrack to City Centre is 15 minutes on DART) and a variety of bus routes. There are numerous local amenities all within a few minutes from the property. The property is also only a stroll to the magnificent coastal walkway and cycle track. The location of this property cannot be overstated with East Point Business Park, Dublin airport and the M50/M1 all within easy access. Bright and spacious internal living accommodation of c. 101 sqm comprises of inviting entrance hallway and dining area, large living room, kitchen and extended sitting room to the rear. Upstairs hosts 3 generous bedrooms and a family bathroom. The attic has been converted and is in use as a fourth bedroom. No. 25 comes to the market in great condition throughout with the benefit of gas fired central heating, large front driveway, shared side entrance, attic conversion and a sunny south facing rear garden with block built shed which would suit a variety of uses. An opportunity not to be missed: call Ray Cooke Auctioneers on 086 0469458 or 01 6995050 today for further information or to arrange viewing!!
Additional Features;
– c. 101 sq.m
– 3 bed 1 bath
– Mid terrace
– BER E2
– Shared side entrance
– Large front driveway
– Low maintenance rear garden with block built shed
– South facing orientation
– Excellent primary and secondary schools in the area
– Fantastic location
– Easy access to M50 & M1 motorway
– Bus routes to City Centre closeby
– Close to Dart stations
– Close to a wealth of local amenities
-Ideal for first time buyers and growing families
– Early viewing highly advised!!
Location
Similar Properties
For Rent
- 1 Rooms
- 1 Baths
For Sale
- 4 Rooms
- 2 Baths
- 128 sq m
For Sale
- 3 Rooms
- 1 Baths
- 101 sq m
For Sale
- 3 Rooms
- 1 Baths
- 72 sq m
For Sale
- 3 Rooms
- 1 Baths
- 79 sq m
- 3 Rooms
- 2 Baths
- 3 Rooms
- 1 Baths






































