Quick Search:
Property ID:
Sale
Features
Description
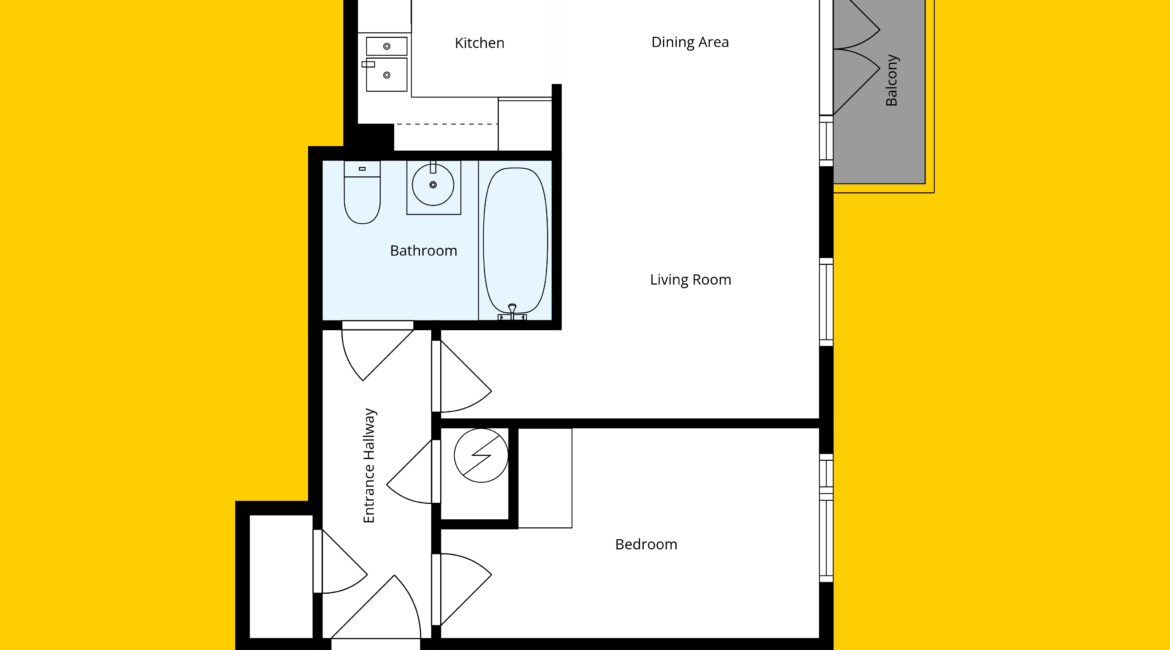
Ray Cooke Auctioneers are delighted to present this superb one-bedroom, one-bathroom fourth-floor apartment to the market at Apartment 283, Parklands, Block 5, Northwood, Santry, Dublin 9. This bright and well-proportioned property comes to the market in excellent condition and benefits from a designated underground parking space, lift access, and a private balcony, making it an ideal opportunity for first-time buyers, downsizers, or investors.
No. 283 enjoys a well-designed layout with light-filled interiors throughout. The accommodation briefly comprises a welcoming entrance hallway which leads to a large double bedroom complete with built-in wardrobes, a fully fitted family bathroom, and a spacious living room. The living area opens out onto a private balcony, providing a pleasant outdoor space ideal for relaxing or entertaining. Off the living room is a fully fitted kitchen, offering ample storage and workspace. The apartment further benefits from gas-fired central heating and double glazed windows throughout.
The Parklands development is set within the mature and highly sought-after Northwood development, surrounded by beautifully maintained communal grounds and woodland scenery. Residents enjoy access to scenic walkways and green areas nearby, including Santry Park, a large park with walking trails, woodland paths and recreational space.
The location is second to none with a wealth of amenities within easy reach. Nearby retail options include Gulliver’s Retail Park and the Omni Park Shopping Centre, which offer a wide range of supermarkets, cafés, restaurants, retail outlets and a cinema. The area is also close to IKEA, Santry Village, and numerous local shops and eateries. Leisure and sports facilities are plentiful with Morton Stadium, gyms, sports clubs and the Northwood Fitness Centre all within close proximity.
The property is also ideally positioned close to a number of major employment and education hubs including Dublin City University, Beaumont Hospital, and the Northwood Business Campus. Dublin Airport is only a short drive away, making the location particularly convenient for commuters and frequent travellers.
Connectivity is excellent with easy access to the M1 and M50 motorways, the Dublin Port Tunnel, and frequent Dublin Bus routes servicing the area, providing quick and easy access to Dublin City Centre. Several bus stops are located within walking distance of the development, offering convenient public transport links right on your doorstep.
Presented in excellent condition and ideally located in one of Dublin 9’s most popular residential developments, Apartment 283, Parklands offers modern apartment living in a peaceful yet highly convenient setting.
contact Ray Cooke Auctioneers today on 0861985247 or 015411455 to arrange a viewing or register your interest.
Additional Features:
- BER C3
- c. 43 sqm
- Fourth floor 1 bedroom / 1 bathroom apartment
- Designated underground car parking space
- Private balcony
- Management fee: €2,180 per annum
- Gas fired central heating
- Double glazed windows
- Lift access
- Built-in wardrobes in bedroom
- Excellent condition throughout
- Mature landscaped development
- Excellent transport links with bus routes to City Centre on your doorstep
Location

Phone:
Connect with us:
Phone:
Connect with us:
Rathcoole Office
Phone:
Connect with us:
Similar Properties
For Sale
- 3 Rooms
- 1 Baths
- 87 sq m
For Sale
- 2 Rooms
- 1 Baths
- 48 sq m
For Sale
- 1 Rooms
- 1 Baths
- 44 sq m
For Sale
- 4 Rooms
- 1 Baths
- 120 sq m
For Sale
- 2 Rooms
- 2 Baths
- 66 sq m
For Sale
- 3 Rooms
- 2 Baths
- 80 sq m
For Sale
- 3 Rooms
- 1 Baths
- 90 sq m
For Sale
- 3 Rooms
- 1 Baths
- 84 sq m
For Sale
- 1 Rooms
- 1 Baths
- 43 sq m








































